
記事の詳細
ハコマルシェでは過去にもこだわりの効いた様々なお部屋をご紹介しております!
似た条件の物件をお探しの場合は、ご紹介させて頂きますので、お気軽にお問い合せください。
レトロモダンな再生アパートメント。
賃 料
- 共益費:-
敷金/礼金:-/-
保証金/解約引:-/-
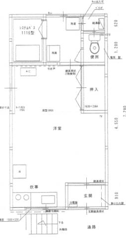
間取り
1R 専有面積:26 ㎡

間取り画像をクリックしている間、拡大画像が表示されます。
基本情報
| 所在地 | |
|---|---|
| 大阪市住之江区粉浜3 | |
| アクセス | |
| 南海本線 住吉大社駅 徒歩5分 | |
| 物件種別 | アパート |
| 構 造 | 木造 |
| 完 成 | 1961年 |
| 階 層 | 地上2階建 |
| 物件設備 | |
| リノベーション | |
| 生活施設 | |
| ー | |
部屋情報
| 階 数 | 2階 |
|---|---|
| 方 角 | ー |
| 部屋設備 | |
| リノベーション、エアコン、フローリング、風呂 、トイレ別、最上階、オール洋間 | |
この記事の担当店舗
似た条件でお探しの場合、担当店舗へお電話いただくか、以下の「希望条件リクエスト」よりメールでリクエスト頂けましたら、条件に合った物件をご紹介させて頂きます。
お電話の際は、サイト名と記事番号をお伝えいただくとスムーズです。
| サイト名 | ハコマルシェ |
|---|---|
| 記事番号 | 3200 |
BRUNO不動産
エイブルネットワーク肥後橋うつぼ公園前店
06-6459-4555
| 所在地 | 大阪市西区京町堀1-10-21 |
|---|---|
| アクセス | 地下鉄四ツ橋線 肥後橋駅7番出口より南西へ徒歩3分 |
店舗マップを確認









今回ご紹介するのは、大阪市住之江区粉浜

南海本線 住吉大社駅より徒歩5分の場所。
大阪で最も古いという住吉公園は、市内有数の緑地帯。
駅を挟んだ東側には、駅名にもある住吉大社があり
粉浜駅へと延びる約350mの粉浜商店街など
門前町としてのにぎわいと伝統あるエリア。
休日にはのんびり公園や商店街を満喫できそう。
そんな下町情緒溢れる場所に建つ、
1990年築の2階建てアパートメント。
全面改装を行い、モダンな造りの中にも昭和レトロな
雰囲気を残した趣きのある物件となっとります。
外観は完全レトロな面持ち。懐かしいささえ感じます。
お部屋は何部屋か募集がかかっているそうな。
写真はそんなお部屋のタイプ様々。
なので、掲載の間取りと合ってるものもあるし、
ないものもあるという感じですが、
写真を参考にお問い合わせしてみて下さいませ。
お部屋は全体的にアジアンテイストながら、和要素も。
レトロな雰囲気だけどモダンでいて、
様々な色のステンドグラスやガラス引き戸が
部屋の雰囲気をアジアンへと運ぶ空間作り。
好きな方にはたまらない。
そんな、マニアックささえあります。
完全リノベーションなので、
エアコン・セパレート・独立洗面台・TVモニターホン・収納など
欲しい物は大体揃ってます。
こんな所に昭和レトロさが残る。
レトロモダンな再生アパートメント。
気になった方、まずは、問い合わせで!╭( ・ㅂ・)و
すでに終了している場合もございますので、あしからず。。。(ノ_ _)ノ