【過去に掲載の賃貸物件】大阪市西区 大阪市西区 詳細

こちらでご覧頂ける物件は現在、募集は終了しております。あらかじめご了承ください。
あくまでも、物件探しの参考までにご覧頂ける様、テキスト等は省いて表示しております。似た条件の物件をお探しの場合は、ご紹介させて頂きますので、お気軽にお問い合せください。

プレミストタワー大阪新町ローレルコート(物件番号:S10944992)

  • 即入居可
  • 敷金なし
  • 無料オンライン相談可
家賃
共益費
-万円
-
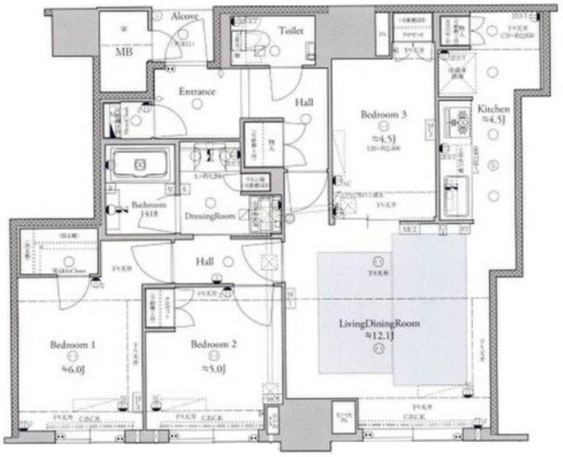
敷金(保証金) - 間取り / 広さ 3LDK / 75.71㎡
礼金 / 償却 -- 向き
完成年月 築7年(2018/01完成) 建物種別
物件構造
マンション
RC
階 / 階建 10階 / 38階建
交通 Osaka Metro長堀鶴見緑地線「西大橋」徒歩5分
Osaka Metro四つ橋線「四ツ橋」徒歩10分
Osaka Metro千日前線「西長堀」徒歩10分
所在地 大阪府大阪市西区新町2丁目
  • 間取画像

物件情報は代表的なお部屋を掲載しております。
建物内の別の間取りでも空室がある場合がございます。
ご指名物件の空室待ちなども受付けておりますので、お電話かメールにてスタッフまでお申付下さい。
※写真や図と現況が異なる場合は現況を優先させていただきます。

-万円(共益費:-)

間取画像
敷/礼 - 間取り 3LDK
階数 38階建 広さ 75.71㎡
築年 築7年 / 2018年01月 種別 マンション
交通 Osaka Metro長堀鶴見緑地線「西大橋」徒歩5分
Osaka Metro四つ橋線「四ツ橋」徒歩10分
Osaka Metro千日前線「西長堀」徒歩10分
住所 大阪市西区新町

Osaka Metro長堀鶴見緑地線「西大橋駅」 徒歩5分

間取画像

物件画像

    物件情報は代表的なお部屋を掲載しております。
    建物内の別の間取りでも空室がある場合がございます。
    ご指名物件の空室待ちなども受付けておりますので、お電話かメールにてスタッフまでお申付下さい。
    ※写真や図と現況が異なる場合は現況を優先させていただきます。

    基本情報

    構 造RC 完成日2018/01 階層/戸数38階建/-
    所在地大阪市西区新町2丁目
    アクセスOsaka Metro長堀鶴見緑地線「西大橋駅」 徒歩5分
    竣工会社株式会社大林組 事業主大和ハウス工業株式会社・近鉄不動産株式会社
    管理会社大和ライフネクスト株式会社 管理形態全部委託
    土地権利所有権 管理人日勤
    構 造RC
    完成日2018/01
    階層/戸数38階建/-
    所在地大阪市西区新町2丁目
    アクセスOsaka Metro長堀鶴見緑地線「西大橋駅」 徒歩5分
    竣工会社株式会社大林組
    事業主大和ハウス工業株式会社・近鉄不動産株式会社
    管理会社大和ライフネクスト株式会社
    管理形態全部委託
    土地権利所有権
    管理人日勤

    Osaka Metro長堀鶴見緑地線「西大橋駅」 徒歩5分

    物件設備

    キッチン/バス・トイレ システムキッチン、給湯、追焚機能、温水洗浄便座、カウンターキッチン、浴室乾燥機、洗面所独立、バス・トイレ別、ガスコンロ、コンロ(三口)
    お部屋の設備サービス ウォークインクローゼット、床暖房、クローゼット、シューズボックス、エアコン、室内洗濯機置き場、バルコニー、フローリング
    セキュリティ 防犯カメラ、オートロック、TVドアホン
    共用スペースの
    特徴・設備
    分譲賃貸、宅配ボックス、駐輪場あり、フロントサービス、契約形態(定期借家)、保証人不要、水道(公営)、排水(下水)、ごみ出し24時間OK、敷金なし
    備考

    物件概要

    プレミストタワー大阪新町ローレルコート

    - (共益費:-

    - -

    間取り / 広さ 3LDK / 75.71㎡ 所在階数 10階 向き
    駐車場 無 / − 保険 要 20,000円 契約期間 5年
    保証会社 加入要 エポスカード 利用料初回契約時:50%、更新時:10,000円、月額:300円
    その他経費 24時間管理費 660円、エアコン分解清掃 16,500円
    備考 −大阪市西区新町のおすすめマンション募集中。防犯カメラ設置、オートロック、宅配ボックスあり。お気軽にお問い合わせください。
    物件のお問い合わせ番号S10944992
    間取り / 広さ 3LDK / 75.71㎡
    所在階数 10階
    向き
    駐車場 無 / −
    保険 要 20,000円
    契約期間 5年
    保証会社 加入要 エポスカード 利用料初回契約時:50%、更新時:10,000円、月額:300円
    その他経費 24時間管理費 660円、エアコン分解清掃 16,500円
    備考 −大阪市西区新町のおすすめマンション募集中。防犯カメラ設置、オートロック、宅配ボックスあり。お気軽にお問い合わせください。
    物件のお問い合わせ番号S10944992

    この物件の動画がございます!ぜひ、ご覧ください!

    この物件へのお問い合わせ

    過去に掲載していた「プレミストタワー大阪新町ローレルコート」について、お気軽にお問い合わせください。

    お問合せ店舗
    お問合せ内容必須
    • (最も重視する条件:
    その他:
    お名前必須
    ご連絡先必須
    どちらか1つだけでもOK
    • メールアドレス:
    • 電話番号:
    その他任意

    ご来店をご希望の場合は「ご来店人数」をお選びください。

    当社の「個人情報の取扱いについて」をご確認ください。

    「プレミストタワー大阪新町ローレルコート」の取り扱い店舗

    物件番号 S10944992 サイト名 マンション
    物件番号 S10944992
    サイト名 マンション

    ※電話でお問い合わせの際は、サイト名と物件番号をお伝え下さい。 最新の空室確認、内覧希望、詳しい情報を知りたい、似た物件を探したい、などお気軽にお問い合わせ下さい。

    BRUNO不動産株式会社
    エイブルネットワーク肥後橋うつぼ公園前店

    店舗外観

    所在地
    大阪市西区京町堀1-10-21

    アクセス
    地下鉄四ツ橋線 肥後橋駅7番出口より南西へ徒歩3分

    06-6459-4555

    大阪市西区を中心に賃貸マンション・分譲賃貸・高級賃貸・中古マンション・貸店舗・貸事務所のお探しは、靭公園の近くに店舗を構えるエイブルネットワーク肥後橋うつぼ公園前店にお任せください!


    同じ建物の賃貸物件一覧(0件)

    現在、賃貸募集物件はございません。

    過去の家賃相場例(※現在、募集は行っていません)

    家賃 共益費 間取り 専有面積 所在地
    募集事例
    30万円 30,000円 3LDK 75.71㎡ 10階 募集時の情報
    30万円
    30,000円

    3LDK (75.71㎡) / 10階

    募集時の情報

    42万円 30,000円 2LDK 83.12㎡ 35階 募集時の情報
    42万円
    30,000円

    2LDK (83.12㎡) / 35階

    募集時の情報

    30万円 30,000円 2LDK 66.28㎡ 36階 募集時の情報
    30万円
    30,000円

    2LDK (66.28㎡) / 36階

    募集時の情報

    25万円 30,000円 3LDK 72.63㎡ 8階 募集時の情報
    25万円
    30,000円

    3LDK (72.63㎡) / 8階

    募集時の情報

    ログイン・新規会員登録で、過去家賃相場や詳しい条件をご覧いただけます。
    また、会員様だけに公開している会員限定物件会員様限定!非公開物件もございます。

    過去の間取りやその他類似のお部屋等、お探しの物件のご希望や 賃貸募集物件が見つかった場合に、その情報を素早くお知らせいたします。

    賃貸募集!お電話でのお問い合せ
    • エイブルネットワーク肥後橋うつぼ公園前店 06-6459-4555
     

    「プレミストタワー大阪新町ローレルコート」所有者様へ

    売却査定・家賃査定で資産価値を確認したい方
    売却・住み替え・賃貸管理のご相談がしたい方

    あなたにおすすめの物件

    ラ・トゥール

    賃料9万円 〜
    販売価格-

    間取 2LDK 〜
    築年月 2002/10( 築23年)
    Osaka Metro中央線「九条駅」徒歩8分

    S-RESIDENCE阿波座bouncy

    賃料7.2万円 〜
    販売価格-

    間取 1K 〜
    築年月 2025/03( 新築)
    Osaka Metro中央線「阿波座駅」徒歩3分

    グランロード立売堀

    賃料7.7万円 〜
    販売価格-

    間取 1K 〜
    築年月 2018/10( 築7年)
    Osaka Metro中央線「阿波座駅」徒歩5分

    コンフォリア・リヴ本町WEST Q

    賃料9.4万円 〜
    販売価格-

    間取 1DK 〜
    築年月 2025/03( 新築)
    Osaka Metro中央線「阿波座駅」徒歩5分


    物件カテゴリから探す

    Copyright 2025 エイブルNW 大阪 BRUNO All Rights Reserved.

    電話でのお問い合わせ

    LINEでお問い合わせ

    物件依頼リクエスト

    来店予約