¥ê¥Î¥Ù¡¼¥·¥ç¥ó¡¦ºÆÀ¸ ÄÂÂßʪ·ï°ìÍ÷
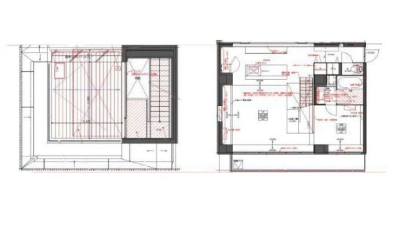
Âçºå»ÔÆâ¤ÈËÌÀݤÇÃíÌܤΥê¥Î¥Ù¡¼¥·¥ç¥óÄÂÂߤòÆÃ½¸¡£ Âçºå»ÔÆâÃæ¿´Éô¡ÊÀ¾¶è¡¦Ãæ±û¶è¡¦Ë̶衦ʡÅç¶è¡¦Ï²Â®¶è¡Ë¤Ç¤Ï¡¢¸Å¤¤·úʪ¤ò¥ê¥Î¥Ù¤·¤¿¥Ç¥¶¥¤¥óÀ¤Î¹â¤¤Êª·ï¤¬¿Íµ¤¡£ Âçºå»ÔÆîÉô¡Ê½»Ç·¹¾¶è¡¦À¾À®¶è¡¦Åì½»µÈ¶è¡¦½»µÈ¶è¡Ë¤Ç¤Ï¡¢¥³¥¹¥Ñ¤ÎÎɤµ¤È½»¤ß¤ä¤¹¤µ¤òξΩ¤·¤¿¥ê¥Î¥ÙÄÂÂߤ¬ËÉÙ¡£ ËÌÀÝ¡Ȩ̂Ì̻ԡ¦ËÃæ»Ô¡¦ÃÓÅĻԡ¦¿áÅĻԡ¦°ñÌÚ»Ô¡¦¹âÄлԡˤǤϡ¢¥ô¥£¥ó¥Æ¡¼¥¸¥Þ¥ó¥·¥ç¥ó¤òºÆÀ¸¤·¤¿¸ÄÀÇÉʪ·ï¤âÁý¤¨¤Æ¤¤¤Þ¤¹¡£ ¡Ö¿·ÃÛ¤è¤êÌ£¤ï¤¤¤Î¤¢¤ë¶õ´Ö¡×¤òµá¤á¤ëÊý¤Ë¤ª¤¹¤¹¤á¤Ç¤¹¡£