ÃÛÀõ°ìÅïŹÊÞ¡¢Åê»ñÍÑʪ·ï¤Î¤´¾Ò²ð
¡ÚÇä¤êŹÊÞ¡ÛÊÔ½¸¥¹¥¿¥Ã¥Õ¡§´ßÅÄ

º£²ó¤Ï¡¢Âçºå»ÔÀ¾¶è¿ÙËÜÄ®¤Ë°ÌÃÖ¤¹¤ëÅê»ñÍÑŹÊÞʪ·ï¡ÖWEST SIDE UTSUBO¡×¤ò¤´¾Ò²ð¤¤¤¿¤·¤Þ¤¹¡£
¿Íµ¤¥¨¥ê¥¢¤Ç¤¢¤ë¿Ù¸ø±à¤Î¤¹¤°¶á¤¯¤Ë°ÌÃÖ¤·¡¢ÃÛÀõ¤Î°ìÅïÂߤ·Å¹ÊޤȤ·¤ÆÃíÌܤµ¤ì¤Æ¤¤¤ëʪ·ï¤Ç¤¹¡£
ËÜʪ·ï¤ÏÂçºå»ÔÀ¾¶è¿ÙËÜÄ®2ÃúÌܤ˽êºß¤·¡¢Ãϲ¼Å´³ÆÀþ¡ÖËÜÄ®¡×±Ø¤«¤éÅÌÊâ8ʬ¡¢³ÆÀþ¡Ö°¤ÇȺ¡ױؤ«¤éÅÌÊâ6ʬ¤È¡¢Ê£¿ôÏ©Àþ¤¬ÍøÍѤǤ¤ëÍøÊØÀ¤Î¹â¤¤Î©ÃϤˤ¢¤ê¤Þ¤¹¡£
¤µ¤é¤Ë¡¢Âçºå»ÔÆâ¤Ç¤â¿Íµ¤¤Î¹â¤¤¿Ù¸ø±à¤Þ¤ÇÅÌÊâ1ʬ¤È¤¤¤¦¥í¥±¡¼¥·¥ç¥ó¤Ç¡¢¼þÊդˤϥª¥Õ¥£¥¹¤ä½»Âð¡¢¥«¥Õ¥§¤Ê¤É¤¬Î©¤ÁʤÖÌ¥ÎÏŪ¤Ê¥¨¥ê¥¢¤È¤Ê¤Ã¤Æ¤¤¤Þ¤¹¡£

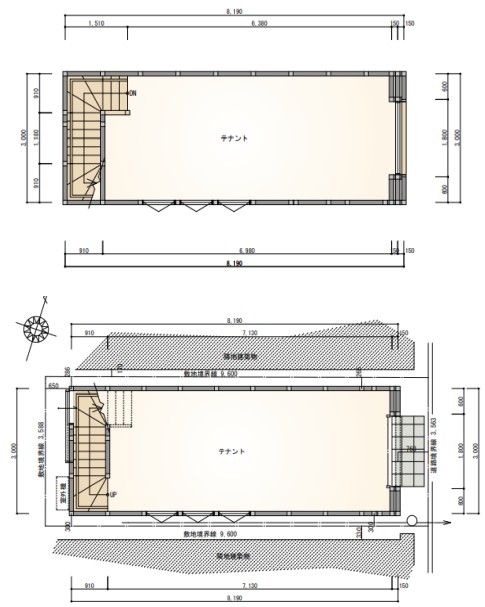
·úʪ¤ÏÎáÏÂ5ǯ6·îÃÛ¤ÎÃÛÀõʪ·ï¤Ç¡¢ÌÚ¤¹ç¶â¥á¥Ã¥¹ÝÈĤ֤¤Î2³¬·ú¤Æ¡£
±ä¾²ÌÌÀѤÏ49.14Ö¡ÊÌó14.86ÄڡˤȤʤäƤ¤¤Þ¤¹¡£
1³¬¡¦2³¬¤È¤â¤ËÌó24.57Ö¡ÊÌó7.4Äڡˤι½À®¤Ç¡¢¥³¥ó¥Ñ¥¯¥È¤Ê¤¬¤é¤âŹÊޤȤ·¤Æ»È¤¤¤ä¤¹¤¤¥ì¥¤¥¢¥¦¥È¤¬ÆÃħ¤Ç¤¹¡£
¸½ºß¤Ï¥Ú¥Ã¥È¥«¥Õ¥§¤È¤·¤ÆÄÂÂßͽÄê¤È¤Ê¤Ã¤Æ¤ª¤ê¡¢¤¹¤Ç¤ËÊݾڲñ¼Ò¤Î¿³ºº¤â¾µÇ§ºÑ¤ß¤Ç¤¹¡£
·î³ÛÄÂÎÁ¤Ï382,800±ß¡ÊÀǹþ¡Ë¡¢Ç¯´Ö¼ýÆþ¤Ï4,593,600±ß¡ÊÀǹþ¡Ë¤ò¸«¹þ¤ó¤Ç¤ª¤ê¡¢É½ÌÌÍø²ó¤ê¤ÏÌó5.41¡ó¤È¤Ê¤Ã¤Æ¤¤¤Þ¤¹¡£°ÂÄꤷ¤¿ÄÂÂß¼ýÆþ¤¬´üÂԤǤ¤ëÅê»ñÍÑʪ·ï¤È¤·¤ÆÌ¥ÎÏŪ¤Ê¾ò·ï¤Ç¤¹¡£


¤Þ¤¿¡¢Á°ÌÌÆ»Ï©¤ÏÌó8m¤È¤æ¤È¤ê¤¬¤¢¤ê¡¢Å¹ÊޤȤ·¤Æ¤Î»ëǧÀ¤ä¥¢¥¯¥»¥¹Ì̤ǤâÍ¥¤ì¤Æ¤¤¤Þ¤¹¡£
¿Ù¸ø±à¼þÊդϥ«¥Õ¥§¤ä°û¿©Å¹¤Î¿Íµ¤¤¬¹â¤¯¡¢ÆÃ¤Ë¶áǯ¤Ï¥Ú¥Ã¥ÈƱȼ²Äǽ¤ÊŹÊޤμûÍפâ¹â¤Þ¤Ã¤Æ¤¤¤ë¥¨¥ê¥¢¤Ç¤¹¡£¤½¤Î¤¿¤á¡¢º£¸å¤â°ÂÄꤷ¤¿¥Æ¥Ê¥ó¥È¼ûÍפ¬´üÂԤǤ¤ëΩÃϤȸÀ¤¨¤ë¤Ç¤·¤ç¤¦¡£
Âçºå»ÔÀ¾¶è¤Î¿Íµ¤¥¨¥ê¥¢¤Ç¤¢¤ë¿ÙËÜÄ®¤Ç¡¢ÃÛÀõ¤«¤Ä°ìÅïÂߤ·¤ÎŹÊÞÅê»ñʪ·ï¤ÏÈó¾ï¤Ë´õ¾¯¤Ç¤¹¡£
¸ø±à¶áÀܤȤ¤¤¦Ì¥ÎÏŪ¤ÊΩÃϤ⤢¤ê¡¢Ä¹´üŪ¤Ê»ñ»º±¿ÍѤò¤ª¹Í¤¨¤ÎÊý¤Ë¤â¤ª¤¹¤¹¤á¤Îʪ·ï¤Ç¤¹¡£¤´¶½Ì£¤ò¤ª»ý¤Á¤ÎÊý¤Ï¡¢¤¼¤Ò¤ªµ¤·Ú¤Ë¤ªÌ䤤¹ç¤ï¤»¤¯¤À¤µ¤¤¡£
| ʪ·ï¾ðÊó | |
|---|---|
![]() |
|
| ¹¤µ¡¦Ê¿ÊÆ | 14.86ÄÚ¡¡ÀìÍÌÌÀÑ¡§49.14 ㎡ |
| ÅÚÃÏÌÌÀÑ | 34.18m2 |
| ½êºßÃÏ | ÂçºåÂçºå»ÔÀ¾¶èð×ËÜÄ®2ÃúÌÜ |
| ¥¢¥¯¥»¥¹ | Âçºå¥á¥È¥í»Í¤Ä¶¶Àþ ËÜÄ®±Ø ÅÌÊâ8ʬ |
| ʪ·ï¼ïÊÌ¡¦µ¬ÌÏ | Çä¤êŹÊÞ¡¡ÃϾå2³¬·ú |
| Ê罸¾õ¶· | Í׳Îǧ |
| ¤ªÌ䤤¹ç¤» µ»öÈÖ¹æ | 15943 |
¢¨Êª·ï¾ðÊó¤Ï¾ï¤ËήÄ̤·¤Æ¤¤¤ë¤¿¤á¡¢¤ªÌä¹ç¤»¤Î¥¿¥¤¥ß¥ó¥°¤Ë¤è¤Ã¤Æ¤ÏÊ罸¾õ¶·¤¬°Û¤Ê¤ë¾ì¹ç¤¬¤´¤¶¤¤¤Þ¤¹¡£
