ËÜÄ®±ØÅÌÊâ3ʬ¡¢ÅÔ¿´¤Ç³ð¤¨¤ë¥¹¥Þ¡¼¥È³«¶È ¡½ RE-022 502¹æ¼¼¤Î¤´¾Ò²ð
Âçºå¤Î¥Ó¥¸¥Í¥¹Ãæ¿´ÃÏ¡¦ËÜÄ®¥¨¥ê¥¢¤Ë°ÌÃÖ¤¹¤ë¡ÖRE-022¡×502¹æ¼¼¤Î¤´¾Ò²ð¤Ç¤¹¡£
»Í¤Ä¶¶Àþ¡ÖËÜÄ®¡×±Ø¤è¤êÅÌÊâ3ʬ¡¢Ãæ±ûÀþ¡ÖËÜÄ®¡×±Ø¤«¤é¤âÅÌÊâ4ʬ¤È¡¢¥¢¥¯¥»¥¹¤ÎÎɤµ¤¬Ì¥ÎϤÎΩÃÏ¡£
ÍèµÒ¤Î¿¤¤»ö̳½ê¤äͽÌóÀ©¥µ¥í¥ó¤Ë¤âŬ¤·¤¿¡¢ÍøÊØÀ¤Î¹â¤¤¥í¥±¡¼¥·¥ç¥ó¤Ç¤¹¡£
ʪ·ï¤ÏÂçºå»ÔÃæ±û¶èËÜÄ®4ÃúÌܤ˷ú¤ÄÅ´¹ü¤5³¬·ú¤Æ¥Ó¥ë¡£
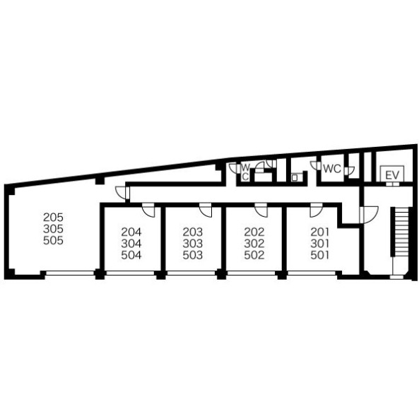
º£²óÊ罸¤Î502¹æ¼¼¤Ï¡¢ÀìÍÌÌÀÑ18.84Ö¡ÊÌó5.7ÄڡˤΥ³¥ó¥Ñ¥¯¥È¤Ê¥Æ¥Ê¥ó¥È¶è²è¤Ç¤¹¡£
¾¯¿Í¿ô¤Ç¤Î¥ª¥Õ¥£¥¹ÍøÍѤ䡢¥«¥¦¥ó¥»¥ê¥ó¥°¥ë¡¼¥à¡¢¥Ç¥¶¥¤¥ó»ö̳½ê¡¢ÊªÈΤòȼ¤ï¤Ê¤¤¥µ¡¼¥Ó¥¹Å¹Êޤʤɤˤª¤¹¤¹¤á¤Î¥µ¥¤¥º´¶¡£½é¤á¤Æ¤ÎÆÈΩ³«¶È¤Ë¤â¼è¤êÆþ¤ì¤ä¤¹¤¤¹¤µ¤Ç¤¹¡£
·úʪÆâ¤Ë¤Ï¥¨¥ì¥Ù¡¼¥¿¡¼1´ð¤ò´°È÷¤·¡¢2³¬°Ê¾å¤Î¶¦ÍÑÉô¤Ë¤ÏÃ˽÷Ê̥ȥ¤¥ì¤òÀßÃÖ¡£
¼¼Æâ¤Ë¤Ï¥¨¥¢¥³¥ó¤¬È÷¤¨¤é¤ì¤Æ¤ª¤ê¡¢¥¤¥ó¥¿¡¼¥Í¥Ã¥È¤Ë¤âÂбþ¤·¤Æ¤¤¤Þ¤¹¡£¾ÈÌÀ¥¹¥Ý¥Ã¥È¥é¥¤¥È¤ä¥Ö¥é¥¤¥ó¥É¥«¡¼¥Æ¥ó¤âÀßÃֺѤߤΤ¿¤á¡¢½é´üÈñÍѤòÍÞ¤¨¤Ê¤¬¤é¥¹¥à¡¼¥º¤Ë³«¶È½àÈ÷¤ò¿Ê¤á¤é¤ì¤ëÅÀ¤âÌ¥ÎϤǤ¹¡£
¤Þ¤¿¡¢¥ª¡¼¥È¥í¥Ã¥¯¡Ê8»þ¡Á23»þOPEN¡Ë¤Ë²Ã¤¨¡¢³Æ¸Í¤Ë¤Ï24»þ´Ö¥»¥¥å¥ê¥Æ¥£¤ò´°È÷¡£
ËÉÈÈÌ̤ˤâÇÛ褵¤ì¤¿°Â¿´¤Î´Ä¶¤¬À°¤Ã¤Æ¤¤¤Þ¤¹¡£2³¬¤«¤é5³¬¤Ï¶Ø±ì¥Õ¥í¥¢¤È¤Ê¤Ã¤Æ¤ª¤ê¡¢¥¯¥ê¡¼¥ó¤Ê¶õ´Ö¤ò°Ý»ý¤Ç¤¤ë¤Î¤â¥Ý¥¤¥ó¥È¤Ç¤¹¡£
¼þÊդϥª¥Õ¥£¥¹¥Ó¥ë¤¬Î©¤Áʤӡ¢°û¿©Å¹¤ä¥«¥Õ¥§¤â½¼¼Â¡£¥Ó¥¸¥Í¥¹¥é¥ó¥Á¤äÂǤÁ¹ç¤ï¤»¾ì½ê¤Ë¤âº¤¤ê¤Þ¤»¤ó¡£
ÅÔ¿´¤Ç¤¢¤ê¤Ê¤¬¤éÍî¤ÁÃ夤¤¿³¹Ê¤ߤ¬¹¤¬¤ëËÜÄ®¥¨¥ê¥¢¤Ï¡¢´ë¶È¥¤¥á¡¼¥¸¸þ¾å¤Ë¤â¤Ä¤Ê¤¬¤ë´Ä¶¤Ç¤¹¡£
Äê´ü¼Ú²È·ÀÌó5ǯ¡¢Æþµï»þ´ü¤ÏÁêÃ̲Äǽ¡£
¿Íµ¤¥¨¥ê¥¢¤Î¤¿¤á¡¢¶õ¼¼¾ðÊó¤ÏÊÑÆ°¤¬Áᤤ·¹¸þ¤Ë¤¢¤ê¤Þ¤¹¡£¥³¥ó¥Ñ¥¯¥È¤Ê¤¬¤éµ¡Ç½À¤òÈ÷¤¨¤¿¤³¤Î¶õ´Ö¤Ç¡¢¿·¤¿¤Ê¥Ó¥¸¥Í¥¹¤Î°ìÊâ¤òƧ¤ß½Ð¤·¤Æ¤ß¤Þ¤»¤ó¤«¡£




