½»Ç·¹¾¶è¿·ËÌÅç2ÃúÌܤÎÁÒ¸ËÊ»Àß»ö̳½ê
¡ÚÂßÁҸˡÛÊÔ½¸¥¹¥¿¥Ã¥Õ¡§¾å³À

Âçºå»Ô½»Ç·¹¾¶è¿·ËÌÅç2ÃúÌܤǻö¶È¸úΨ¤ò¹â¤á¤ëÁҸˡ¦»ö̳½ê°ìÂη¿Êª·ï
Âçºå»Ô½»Ç·¹¾¶è¿·ËÌÅç2ÃúÌܤϡ¢¹ÁÏÑ¥¨¥ê¥¢¤Ø¤â»Ô³¹ÃÏ¤Ø¤âÆ°¤¤ä¤¹¤¤Î©ÃϤ¬¤½¤í¤¦¡¢ÊªÎ®¡¦À½Â¤¡¦¥µ¡¼¥Ó¥¹·Ï»ö¶È¼Ô¤Ë¤È¤Ã¤Æ¥Ð¥é¥ó¥¹¤ÎÎɤ¤¥Ý¥¸¥·¥ç¥ó¤Ç¤¹¡£¼þÊդϽ๩¶ÈÃϰ褬¹¤¬¤ê¡¢ÁҸˤ乩¾ì¤¬ÅÀºß¤·¤Ä¤Ä¤â½»ÂðÃϤȤâÎÙÀܤ¹¤ëÍî¤ÁÃ夤¤¿Ê·°Ïµ¤¡£Á°ÌÌÆ»Ï©¤Ï¼Ö¤Î¤¹¤ì°ã¤¤¤Ë¤â;͵¤¬¤¢¤ê¡¢»ñºàÈÂÆþ¤ä¼Öξ¤Î½ÐÆþ¤ê¤¬¤·¤ä¤¹¤¤´Ä¶¤¬À°¤Ã¤Æ¤¤¤Þ¤¹🌿
¤Þ¤¿¡¢ ½»Ç·¹¾¸ø±à±Ø¡ÊOsaka Metro »Í¤Ä¶¶Àþ¡Ë ¤Þ¤ÇÅÌÊâ·÷Æâ¤È¤¤¤¦ÍøÊØÀ¤Ï¡¢¾¯¿Í¿ô±¿±Ä¤Î´ë¶È¤ä»ö̳½êÊ»ÀߤΥ¥¯¥¹¥¿¥¤¥ë¤Ë¤âÁêÀ¤¬Îɤ¯¡¢½¾¶È°÷¤ÎÄÌ¶ÐÆ°Àþ¤¬³ÎÊݤ·¤ä¤¹¤¤ÅÀ¤âÌ¥ÎϤǤ¹¡£
Âçºå»Ô½»Ç·¹¾¶è¿·ËÌÅç2ÃúÌܤϡ¢ºå¿À¹â®15¹æºæÀþ¡Ö½»Ç·¹¾¡×Æþ¸ý¤Ë¤â¥¢¥¯¥»¥¹¤·¤ä¤¹¤¯¡¢¼Ö¤Ë¤è¤ëÅÔ»ÔÆâ¡¦Éܳ°°Üư¤ÎÁÐÊý¤Ë¥á¥ê¥Ã¥È¤¬¤¢¤ê¤Þ¤¹¡£¹ÁÏÑ»ÜÀߤäÆî¹Á¥¨¥ê¥¢¤Ë¤â´ó¤ê¤ä¤¹¤¤¤¿¤á¡¢ÇÛÁ÷µòÅÀ¤È¤·¤Æ³èÍѤ¹¤ë»ö¶È¼Ô¤Ë¤È¤Ã¤Æ¸úΨ¤Î¤è¤¤¥¨¥ê¥¢¤È¸À¤¨¤ë¤Ç¤·¤ç¤¦¡£¼þ°Ï¤Ë¤Ï·î¶ËÃó¼Ö¾ì¤ä¶È̳·Ï»ÜÀߤ¬Â¿¤¯¡¢¼Öξ¤òÃæ¿´¤Ëư¤¯¶ÈÂ֤ˤâ¥Õ¥£¥Ã¥È¤·¤Þ¤¹🏭
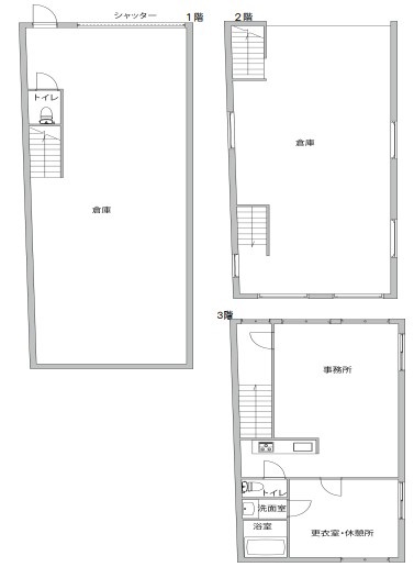
º£²ó¤ÎÁÒ¸Ëʪ·ï¤Ï¡¢ ±ä¾²Ìó240֤Υܥê¥å¡¼¥à¤¢¤ë¹½À® ¤¬ÆÃĹ¡£
1³¬¤ÏÅ·°æ¹â¤ò¤·¤Ã¤«¤ê³ÎÊݤ·¤¿ÁҸ˶õ´Ö¤Ç¡¢¥·¥ã¥Ã¥¿¡¼Á°¤Î¥¹¥Ú¡¼¥¹¤ò»È¤Ã¤¿²Ù»«¤¤â¤·¤ä¤¹¤¤Â¤¤ê¡£2³¬¤Ï¥·¥ó¥×¥ë¤Ç»È¤¤¾¡¼ê¤ÎÎɤ¤ÁÒ¸Ë¥Õ¥í¥¢¡¢3³¬¤Ë¤Ï»ö̳½ê¥¹¥Ú¡¼¥¹¤¬ÇÛÃÖ¤µ¤ì¤Æ¤ª¤ê¡¢¸½¾ìºî¶È¤È´ÉÍý¶È̳¤òƱ¤¸·úʪÆâ¤Ç´°·ë¤Ç¤¤Þ¤¹✨ ¥È¥¤¥ìÀßÈ÷¤âÈ÷¤ï¤Ã¤Æ¤ª¤ê¡¢½¾¶È°÷¤¬¾ïÃ󤹤ë»ö¶È¤Ë¤â¸þ¤¤¤Æ¤¤¤Þ¤¹¡£
ÃÛǯ¿ô¤Ï1999ǯ¤Ç¤¹¤¬¡¢¹½Â¤¤ä¥ì¥¤¥¢¥¦¥È¤Ï¸½ºß¤Î»ö¶È¥Ë¡¼¥º¤Ë¤âÂбþ¤·¤ä¤¹¤¤¼ÂÍÑŪ¤ÊÆâÍÆ¡£Âçºå»Ô½»Ç·¹¾¶è¿·ËÌÅç2ÃúÌܤλý¤Ä¸òÄÌÍøÊØÀ¤È¡¢ÁҸˡܻö̳½ê¤Î°ìÂγèÍѤ¬¤Ç¤¤ëÅÀ¤Ï¡¢ÉÔÆ°»º¡¦ÄÂÂߤλëÅÀ¤Ç¤âÂ礤ÊÌ¥ÎϤǤ¹¡£Á°ÌÌÆ»Ï©¤Î°·¤¤¤ä¤¹¤µ¡¢¼þÊմͤÎÍî¤ÁÃ夡¢¹â®ƻϩ¤Ø¤Î¶á¤µ¤¬¤½¤í¤¤¡¢»ö¶È¤Îµ¬ÌϳÈÂç¤ä°Üž¤Ë¤â¥Ð¥é¥ó¥¹¤è¤¯±þ¤¨¤ë¥Ý¥¸¥·¥ç¥ó¡£
ÀßÈ÷¤ò³è¤«¤·¤¿¸úΨŪ¤ÊưÀþÀ߷פ¬¤·¤ä¤¹¤¯¡¢ÊªÎ®¤äÊÝ´É¡¢·Úºî¶È¤òȼ¤¦¶È¼ï¤Ë¤âÉý¹¤¯¥Õ¥£¥Ã¥È¤·¤Þ¤¹¡£
Âçºå»Ô½»Ç·¹¾¶è¿·ËÌÅç2ÃúÌܤÇÁҸˤȻö̳½ê¤ò¤Þ¤È¤á¤Æ³ÎÊݤ·¤¿¤¤»ö¶È¼Ô¤Ë¤È¤Ã¤Æ¡¢ÌµÍý¤Î¤Ê¤¤Æ³Àþ¤È»È¤¤Ê¬¤±¤¬¤·¤ä¤¹¤¤¥Ð¥é¥ó¥¹¤Î¼è¤ì¤¿°ìÅïʪ·ï¤Ç¤¹¡£
| ʪ·ï¾ðÊó | |
|---|---|
![]() |
|
| ¹¤µ¡¦Ê¿ÊÆ | 80.22ÄÚ¡¡ÀìÍÌÌÀÑ¡§240.66 ㎡ |
| ½êºßÃÏ | ÂçºåÂçºå»Ô½»Ç·¹¾¶è¿·ËÌÅç2ÃúÌÜ |
| ¥¢¥¯¥»¥¹ | Âçºå¥á¥È¥í»Í¤Ä¶¶Àþ ½»Ç·¹¾¸ø±à±Ø ÅÌÊâ9ʬ |
| ʪ·ï¼ïÊÌ¡¦µ¬ÌÏ | ÂßÁҸˡ¡ÃϾå3³¬·ú |
| Ê罸¾õ¶· | Í׳Îǧ |
| ¤ªÌ䤤¹ç¤» µ»öÈÖ¹æ | 15348 |
¢¨Êª·ï¾ðÊó¤Ï¾ï¤ËήÄ̤·¤Æ¤¤¤ë¤¿¤á¡¢¤ªÌä¹ç¤»¤Î¥¿¥¤¥ß¥ó¥°¤Ë¤è¤Ã¤Æ¤ÏÊ罸¾õ¶·¤¬°Û¤Ê¤ë¾ì¹ç¤¬¤´¤¶¤¤¤Þ¤¹¡£
