¥¹¥±¥ë¥È¥ó¤«¤é»Ï¤Þ¤ëÍýÁÛ¶õ´Ö¡¦Ï©ÌÌŹÊÞ
¡ÚÂߏÊß¡ÛÊÔ½¸¥¹¥¿¥Ã¥Õ¡§´ßÅÄ

Âçºå¡¦¹¾¸ÍËÙ¥¨¥ê¥¢¤Ç»ö̳½ê¤äŹÊÞ¤ò¤ªÃµ¤·¤ÎÊý¤Ë
¤Ô¤Ã¤¿¤ê¤Îʪ·ï¤ò¤´¾Ò²ð¤·¤Þ¤¹¡£
¥Ç¥¶¥¤¥Ê¡¼¥º¥Þ¥ó¥·¥ç¥ó¤È¤·¤ÆÀ߷פµ¤ì¤¿¤³¤Î·úʪ¤Ï¡¢
³°´Ñ¤À¤±¤Ç¤Ê¤¯¶¦ÍÑÉôʬ¤â¥¹¥¿¥¤¥ê¥Ã¥·¥å¤Ç¡¢
ÍèµÒ¤Ø¤Î°õ¾Ý¤òÂçÀڤˤ·¤¿¤¤Êý¤Ë¤â¤ª¤¹¤¹¤á¤Ç¤¤ëʪ·ï¤Ç¤¹¡£
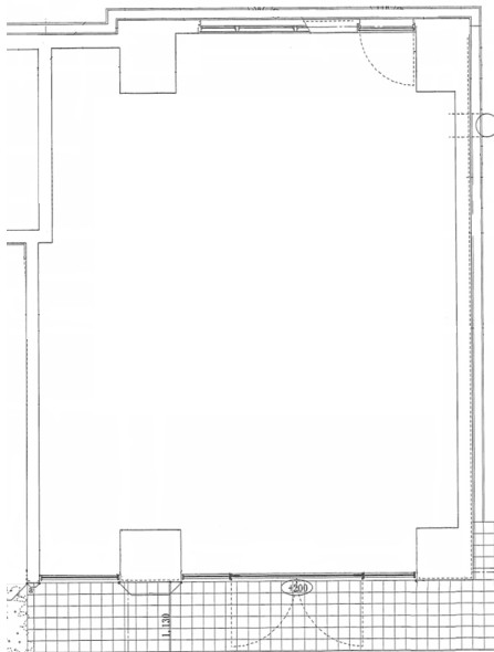
Ê罸¶è²è¤Ç¤¢¤ë1³¬Ï©ÌÌŹÊޤϡ¢39.97Ö¡ÊÌó12.09ÄڡˤÎ
»È¤¤¤ä¤¹¤¤¥¹¥±¥ë¥È¥ó¶õ´Ö¡£°û¿©Å¹ÍøÍѤ⤴ÁêÃ̲Äǽ¤Ç
¶È¼ï¤ä¥ì¥¤¥¢¥¦¥È¤Î¼«Í³ÅÙ¤¬¹â¤¤¤¿¤á¡¢
¥«¥Õ¥§¤ä¥Æ¥¤¥¯¥¢¥¦¥ÈŹ¡¢ÈþÍÆ·Ï¥µ¥í¥ó¡¢¥ª¥Õ¥£¥¹¤Ê¤É¿ÍͤÊÍÑÅÓ¤ËÂбþ¤Ç¤¤Þ¤¹¡£
¥¹¥±¥ë¥È¥ó¾õÂ֤ʤΤǡ¢¼«Ê¬¤ÎÍýÁÛ¤ÎÆâÁõ¤ò
¥¤¥Á¤«¤éºî¤ê¤¿¤¤Êý¤Ë¤ÏÆÃ¤ËÌ¥ÎÏŪ¤Ç¤·¤ç¤¦¡£

ΩÃϤÏÂçºå¥á¥È¥í»Í¤Ä¶¶Àþ¡ÖÈî¸å¶¶¡×±Ø¤«¤éÅÌÊâ9ʬ¡¢
µþºåÅż֡ÖÃæÇ·Åç¡×±Ø¤«¤éÅÌÊâ12ʬ¤È¥¢¥¯¥»¥¹Îɹ¥¡£
¥ª¥Õ¥£¥¹³¹¤ä½»Â𥨥ꥢ¤¬¶á¤¯¡¢¥Ó¥¸¥Í¥¹¤Ë¤â½¸µÒ¤Ë¤â
¥Ð¥é¥ó¥¹¤ÎÎɤ¤´Ä¶¤¬À°¤Ã¤Æ¤¤¤Þ¤¹¡£
¼þÊÕ¤ÏÍî¤ÁÃ夤¤¿Ê·°Ïµ¤¤Ê¤¬¤é¤âÍøÊØÀ¤¬¹â¤¯¡¢
Ư¤¤ä¤¹¤µ¡¦Ë¬¤ì¤ä¤¹¤µ¤ÎÁÐÊý¤ò·ó¤ÍÈ÷¤¨¤Æ¤¤¤Þ¤¹¡£

¡Ö¼«Ê¬¤é¤·¤¤¶õ´Ö¤ò¥¼¥í¤«¤éºî¤ê¤¿¤¤¡×
¡ÖÂçºåÃæ¿´Éô¤Ç¥¢¥¯¥»¥¹¤ÎÎɤ¤Å¹ÊÞ¡¦»ö̳½ê¤ò¹½¤¨¤¿¤¤¡×
µ¤¤Ë¤Ê¤ëÊý¤Ï¡¢Áá¤á¤ÎÆâ¸«¤ò¤ª¤¹¤¹¤á¤·¤Þ¤¹¡£
| ʪ·ï¾ðÊó | |
|---|---|
![]() |
|
| ÄÂÎÁ¡¦¶¦±×Èñ | 241,800±ß¡¡¶¦±×Èñ¡§0±ß |
| ¹¤µ¡¦Ê¿ÊÆ | 12.09ÄÚ¡¡ÀìÍÌÌÀÑ¡§39.97 ㎡ |
| Éß¶â¡¿Îé¶â | 72.5Ëü±ß¡¿79.7Ëü±ß |
| ½êºßÃÏ | ÂçºåÂçºå»ÔÀ¾¶è¹¾¸ÍËÙ2ÃúÌÜ |
| ¥¢¥¯¥»¥¹ | Âçºå¥á¥È¥í»Í¤Ä¶¶Àþ Èî¸å¶¶±Ø ÅÌÊâ9ʬ |
| ʪ·ï¼ïÊÌ¡¦µ¬ÌÏ | ÂߏÊß¡¡ÃϾå7³¬·ú |
| Ê罸¾õ¶· | Í׳Îǧ |
| ¤ªÌ䤤¹ç¤» µ»öÈÖ¹æ | 15328 |
¢¨Êª·ï¾ðÊó¤Ï¾ï¤ËήÄ̤·¤Æ¤¤¤ë¤¿¤á¡¢¤ªÌä¹ç¤»¤Î¥¿¥¤¥ß¥ó¥°¤Ë¤è¤Ã¤Æ¤ÏÊ罸¾õ¶·¤¬°Û¤Ê¤ë¾ì¹ç¤¬¤´¤¶¤¤¤Þ¤¹¡£
