ÃÛÀõ¡Úð׸ø±à¶á¤¯¡Û½Å°û¿©¤âÁêÃ̲Äǽ¡ª
¡ÚÂߏÊß¡ÛÊÔ½¸¥¹¥¿¥Ã¥Õ¡§´ßÅÄ

Âçºå»ÔÀ¾¶è¡¦ð×ËÜÄ®2ÃúÌܤˡ¢´õ¾¯¤Ê¡Ö1ÅïÂߤ·¡×ʪ·ï¤¬Åо줷¤Þ¤·¤¿¡£
ËÜÄ®±Ø¤«¤éÅÌÊâ6ʬ¡¢°¤ÇȺ±ؤ«¤éÅÌÊâ7ʬ¤È¥¢¥¯¥»¥¹¤âÎɤ¯¡¢
¶áÎ٤ˤÏÎÐˤ«¤Êð׸ø±à¤¬¹¤¬¤ë¿Íµ¤¥¨¥ê¥¢¤Ç¤¹¡£
ËÜÄ®¼þÊÕ¤ÇŹÊÞŸ³«¤ò¸¡Æ¤¤·¤Æ¤¤¤ëÊý¤Ë¤ÏÆÃ¤Ë¤ª¤¹¤¹¤á¤Îʪ·ï¤Ç¤¹¡£

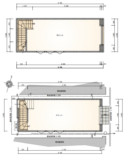
º£²óÊ罸¤µ¤ì¤Æ¤¤¤ë·úʪ¤Ï¡¢ÃÛ2ǯ¤È¤¤¤¦ÃÛÀõ¤Î2³¬·ú¤Æ¡£
1³¬¡¦2³¬Éôʬ¤ò¹ç¤ï¤»¤Æ±ä¾²¹ç·×Ìó49.14Ö¤Î
»È¤¤¤ä¤¹¤¤¥³¥ó¥Ñ¥¯¥È¥µ¥¤¥º¡£
ŹÊÞÁ°¤Ë¤Ï¥¹¥Ú¡¼¥¹¤â¤¢¤ê¡¢Âç·¿´ÇÈĤÎÀßÃÖ¤â²Äǽ¡£
»ëǧÀ¤ò½Å»ë¤·¤¿¤¤Å¹ÊޤˤâÈó¾ï¤Ë¸þ¤¤¤Æ¤¤¤Þ¤¹¡£

¸½¾õ¤Ï¶õ¼¼
½Å°û¿©¤âÁêÃ̤¬¤Ç¤¤ëÅÀ¤Ï¡¢¤³¤Î¥¨¥ê¥¢¤Ç¤Ï¤«¤Ê¤êÌ¥ÎÏŪ¤Ç¤¹¡£
ËÜÄ®¥¨¥ê¥¢¤Ï¥ª¥Õ¥£¥¹¥ï¡¼¥«¡¼¤¬Â¿¤¯¥é¥ó¥Á¼ûÍפâ´üÂԤǤ¤ë¤Û¤«¡¢
ð׸ø±à¼þÊդǤϥ«¥Õ¥§¤Ê¤É¤Î½¸µÒÎϤâ¹â¤¤¤¿¤á¡¢°û¿©·Ï¤Ë¤ÏÆÃ¤ËÁêÀ¤ÎÎɤ¤Î©ÃϤȸÀ¤¨¤Þ¤¹¡£
·ÀÌó´ü´Ö¤Ï2ǯ¡¢¹¹¿·¤Ï¼«Æ°¹¹¿·¤È¤Ê¤Ã¤Æ¤¤¤Þ¤¹¡£
¤Þ¤¿¡¢Á°ÌÌÆ»Ï©¤¬Ìó8m¤È¹¤¤¤¿¤á¡¢
²ÙʪÈÂÆþ¤äŹÊÞ±¿±Ä¤Ë¤âÊØÍø¤Ê´Ä¶¤Ç¤¹¡£

´Ö¼è¤ê¤Ï½ÄĹ¤Î¥·¥ó¥×¥ë¤Ê¹½Â¤¤Ç¡¢2³¬¤ÏµÒÀʤä¥Ð¥Ã¥¯¥ä¡¼¥É¤Ê¤É¡¢
¥¢¥¤¥Ç¥¢¼¡Âè¤Ç¼«Í³¤Ë¥ì¥¤¥¢¥¦¥È²Äǽ¡£
¾®µ¬ÌϤʤ¬¤é¤â¡Ö°ìÅï¤Þ¤ë¤´¤È¼«Ê¬¤ÎŹ¡×¤È¤¤¤¦ÆÈΩ´¶¤¬Ì£¤ï¤¨¤ë¤Î¤ÏÂ礤ÊÌ¥ÎϤǤ¹¡£



ÃϿޤò¸«¤Æ¤âʬ¤«¤ë¤è¤¦¤Ë¡¢ð׸ø±à¤¬ÅÌÊâ·÷Æâ¤Ë¤¢¤ë¤¿¤á¡¢
¼þÊÕ½»Ì±¤À¤±¤Ç¤Ê¤¯¡¢¸ø±àÍøÍѼԤä¥Ó¥¸¥Í¥¹¥Ñ¡¼¥½¥ó¡¢
¿ÊýÌ̤«¤é¤Î½¸µÒ¤¬¸«¹þ¤á¤Þ¤¹¡£
ËÜÄ®¤ÇÆÈΩŹÊÞ¤ò¹½¤¨¤¿¤¤Êý¤ä¡¢
¥³¥ó¥Ñ¥¯¥È¤Çµ¡Æ°ÎϤι⤤ʤŤ¯¤ê¤òÌܻؤ¹Êý¤Ë¤Ô¤Ã¤¿¤ê¤Îʪ·ï¡£
µ¤¤Ë¤Ê¤ëÊý¤Ï¡¢Áá¤á¤ÎÌ䤤¹ç¤ï¤»¤ò¤ª¤¹¤¹¤á¤·¤Þ¤¹¡£
| ʪ·ï¾ðÊó | |
|---|---|
![]() |
|
| ¹¤µ¡¦Ê¿ÊÆ | 14.86ÄÚ¡¡ÀìÍÌÌÀÑ¡§49.14 ㎡ |
| ½êºßÃÏ | ÂçºåÂçºå»ÔÀ¾¶èð×ËÜÄ®2ÃúÌÜ |
| ¥¢¥¯¥»¥¹ | Âçºå¥á¥È¥íÃæ±ûÀþ °¤ÇÈºÂ±Ø ÅÌÊâ6ʬ |
| ʪ·ï¼ïÊÌ¡¦µ¬ÌÏ | ÂߏÊß¡¡ÃϾå2³¬·ú |
| Ê罸¾õ¶· | Í׳Îǧ |
| ¤ªÌ䤤¹ç¤» µ»öÈÖ¹æ | 15212 |
¢¨Êª·ï¾ðÊó¤Ï¾ï¤ËήÄ̤·¤Æ¤¤¤ë¤¿¤á¡¢¤ªÌä¹ç¤»¤Î¥¿¥¤¥ß¥ó¥°¤Ë¤è¤Ã¤Æ¤ÏÊ罸¾õ¶·¤¬°Û¤Ê¤ë¾ì¹ç¤¬¤´¤¶¤¤¤Þ¤¹¡£
