京町堀のワンルーム事務所利用可
【貸事務所】編集スタッフ:岸田

西区京町堀1丁目
四つ橋線「肥後橋駅」から徒歩約3分
通り沿いの分譲マンション
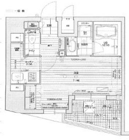
事務所使用もできるワンルームです。
居室は洋室7.1帖
普通に生活しながら
部屋の端っこに机を置いてお仕事
事務所兼住居、そんな感じですかね。

有名ブランドマンションなので
建物にはオートロック、モニター付きインターフォン
エレベーター
お部屋には
二口コンロのキッチン、浴室乾燥機
追い炊きのできるお風呂と充実の設備


最初は予算を抑えて、小さく始める。
少し軌道に乗ってくるなら、もう少し広い場所を検討
まずはの拠点としてご検討いかがでしょうか。
| 物件情報 | |
|---|---|
![]() |
|
| 広さ・平米 | 専有面積:28.83 ㎡ |
| 所在地 | 大阪大阪市西区京町堀1丁目 |
| アクセス | 大阪メトロ四つ橋線 肥後橋駅 徒歩3分 |
| 物件種別・規模 | 貸事務所 地上13階建 |
| 募集状況 | 要確認 |
| お問い合せ 記事番号 | 15104 |
※物件情報は常に流通しているため、お問合せのタイミングによっては募集状況が異なる場合がございます。
