Ê¿ÌîÄ®¡¡¾®µ¬ÌÏÏ©ÌÌŹÊÞ
¡ÚÂߏÊß¡ÛÊÔ½¸¥¹¥¿¥Ã¥Õ¡§³Þ²¬

Ãæ±û¶èÊ¿ÌîÄ®1ÃúÌÜ Âçºå¥á¥È¥íºæ¶ÚÀþËÌÉͱؤâÅÌÊâ3ʬ¤Û¤É
ºæ¶Ú¤«¤é1¥Ö¥í¥Ã¥¯Åì¦
ºæ¶Ú¤«¤é1¥Ö¥í¥Ã¥¯Åì¦

Ê¿ÌîÄ®Ä̤꤫¤éÆî¦¤Ë¾¯¤·Æþ¤Ã¤¿Î©ÃϤ˺£²ó¤ÎÊ罸ʪ·ï¤¬¤¢¤ê¤Þ¤¹¡£

¥Ó¥¸¥Í¥¹³¹¤ÎÊ·°Ïµ¤¤Î¶¯¤¤¥¨¥ê¥¢¤Ç¤¹¤¬
Ê¿Æü¤Ï¥é¥ó¥Á¥¿¥¤¥à¤Î¿ÍÄ̤ê¤â¿¤¯°û¿©Å¹¤â¿¿ô¡£
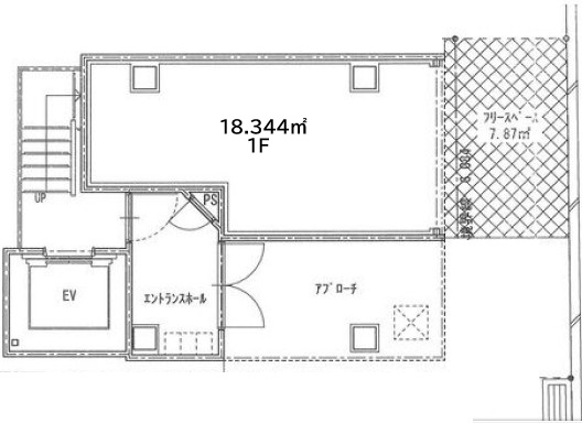
¤½¤ó¤Ê¥¨¥ê¥¢¤Î1³¬Ï©Ì̶è²è

18.344Ö¡¡Ìó5.54ÄÚ
·Ú°û¿©ÁêÃ̲ġ¢¾®µ¬ÌϤʶè²è¤Ê¤Î¤Ç
¥Æ¥¤¥¯¥¢¥¦¥È·Ï¤Î¶È¼ï¤¬¤Ï¤Þ¤ê¤½¤¦¤Ç¤¹¡£
ÂàµîͽÄê¤Ë¤Ê¤ê¤Þ¤¹¤¬¤ªÁá¤á¤Ë¤ªÌ䤤¹ç¤ï¤»¤¯¤À¤µ¤¤¤Þ¤»¡£
| ʪ·ï¾ðÊó | |
|---|---|
![]() |
|
| ¹¤µ¡¦Ê¿ÊÆ | 5.54ÄÚ¡¡ÀìÍÌÌÀÑ¡§18.344 ㎡ |
| ½êºßÃÏ | ÂçºåÂçºå»ÔÃæ±û¶èÊ¿ÌîÄ®1ÃúÌÜ |
| ¥¢¥¯¥»¥¹ | Âçºå¥á¥È¥íºæ¶ÚÀþ ËÌÉ걯 ÅÌÊâ3ʬ |
| ʪ·ï¼ïÊÌ¡¦µ¬ÌÏ | ÂߏÊß¡¡ÃϾå6³¬·ú |
| Ê罸¾õ¶· | Í׳Îǧ |
| ¤ªÌ䤤¹ç¤» µ»öÈÖ¹æ | 15081 |
¢¨Êª·ï¾ðÊó¤Ï¾ï¤ËήÄ̤·¤Æ¤¤¤ë¤¿¤á¡¢¤ªÌä¹ç¤»¤Î¥¿¥¤¥ß¥ó¥°¤Ë¤è¤Ã¤Æ¤ÏÊ罸¾õ¶·¤¬°Û¤Ê¤ë¾ì¹ç¤¬¤´¤¶¤¤¤Þ¤¹¡£
