本町エリアの新築1DK
【マンション】編集スタッフ:池上

Osaka Metro堺筋線「堺筋本町」徒歩6分
Osaka Metro堺筋線「北浜」徒歩7分
のアクセスとなっています。
ビジネスビルが立ち並び、飲食店も多い
華やかなエリアで、コンビニや
スーパー、飲食店、ドラッグストアなども
一通りそろった抜群の立地です。

外観はすらっと都会的な印象です。

エントランスも落ち着いた雰囲気です。

屋内駐輪場があります。

建物の裏にはバイク置場があります。

郵便ポストと宅配ボックスが設置されており
不在時にも安心の設備です。
入り口にはオートロック、防犯カメラがあり
お部屋にTV付のインターフォン設置されています。
顔認証オートロックも導入されており、
両手がふさがっていてもハンズフリーで
エントランスを通過できます。
鍵の紛失・盗難も防げる
セキュリティ性の高い設備です。

エレベーターは一基です。
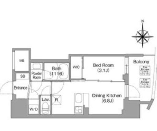
お部屋は14階に位置する1DK(27.37平米)。
インターネット使用料無料のお部屋です。

玄関扉を開けると、落ち着いた雰囲気の空間が広がります。

玄関にはしっかりとしたシューボックスがあります。

嬉しいたっぷり収納スペース◎
入り口を入った右手には
洗濯機置場があります。
上部にはランドリーグッズを
置くスペースがあり便利◎

ウォシュレット・暖房便座機能のついたトイレです。

左手には洗面所があります。
三面鏡の裏と下部に収納スペースがあります。

洗面所の奥はバスルームです。
追い焚き機能・浴室乾燥機能がついています。

廊下を抜けると6.8帖のダイニングキッチンです。

IHの2口コンロで下部に収納スペースがある
シンプルなキッチンです。

優しい光の入るお部屋です。

3.1帖の洋室には奥行きがしっかりある
ウォークインクローゼットがあります。

オフシーズンのお洋服もしっかり収納できそうな
ゆったりとした収納です◎

大きな窓がついており気持ちのいい光が
入ります。

バルコニーは広々!
物干しとちょっとしたガーデニングをするスペースが十分にあります◎
いかがでしたか?
華やかなエリアの新築1DKのお部屋、
安心のセキュリティと充実の設備です◎
気になった方は、ぜひ、お気軽にお問い合わせ下さい!
| 物件情報 | |
|---|---|
![]() |
|
| 間取り・平米 | 1DK 専有面積:27.37 ㎡ |
| 所在地 | 大阪大阪市中央区瓦町2丁目 |
| アクセス | 大阪メトロ堺筋線 堺筋本町駅 徒歩6分 |
| 物件種別・規模 | マンション 地上15階建 |
| 募集状況 | 要確認 |
| お問い合せ 記事番号 | 14875 |
※物件情報は常に流通しているため、お問合せのタイミングによっては募集状況が異なる場合がございます。
