タワマンで暮らす。ナチュラルシックな大人部
【マンション】編集スタッフ:稲垣

今回ご紹介するのは、大阪市中央区南本町にあるマンションの1部屋。
ナチュラルシックなタワマン2LDKです。
最寄り駅は、
Osaka Metro堺筋線「堺筋本町駅」徒歩3分
Osaka Metro御堂筋線/四つ橋線「本町駅」徒歩4分
と駅近な複数路線アクセスになっています。
徒歩6分圏内には、
スーパーやコンビニがあり、
買い物にも困らない周辺環境になっています。
商店街まで近いのも嬉しいポイントです◎

2023年11月築の43階建てマンション。
タワマンならではの高級感ある外観になっています。

エントランス周辺は、
植栽やライトなど、高級感ある雰囲気が魅力的◎

エントランスホールはこちら。
広々した高級感と開放感のあるデザインです。
もちろん、オートロック仕様になっています。

エントランスロビーは、
高い天井とガラス張りの大きな窓が開放感のある空間になっています。

さらに、共用エリアには、
タワマンならではの、展望デッキのようなエリアがあります。
開放的な眺望が魅力的な広々空間です。

敷地内には、機械式の駐車場もあります。
空き状況については、
ぜひ合わせてお問い合わせください。

共用廊下は、
シックな雰囲気のあるホテルライクな空間です。

玄関扉は、
ダークブラウン調のシックデザイン。
重厚感ある扉が◎

玄関を入って
すぐのエリアは水回りになっています。
お手洗いは、清潔感あふれるホワイト空間です。
まるっとしたフォルムがお洒落なデザインが魅力的!
洗練されたホテルライクな雰囲気になっています。

洗面脱衣所と浴室は、
それぞれ大理石風なダークデザインです。
ホテルライクな高級感ある内装に統一されています。

キッチンエリアは、3.4帖の広め空間です。
ダークウッドなデザインで、
重厚感とモダンさを兼ね備えたキッチンになっています。

天板は、ニュアンスのある石目調で高級感デザインです。
また、ガスコンロ3口コンロなど、
設備面も充実しています◎

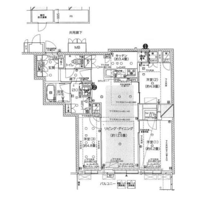
メインのLDKは、
隣の洋室と合わさってプラン変更されています!
2部屋合わさったお部屋は、15帖超えの広々空間。
明るい木目調の開放感あふれる内装になっています。

大きな掃き出しからは、
採光を確保できる心地よい空間です。
キッチン周りには、程よいカウンターがあり、
ディスプレイエリアとしても活用できます!

リビングからは、
2部屋の洋室に繋がっています!
1部屋目は、4.9帖のお部屋です。
ホワイト×木目な柔らかな色調の内装。
クローゼットの扉は、
ダークカラーで、お部屋のアクセントになっています。

1部屋目は、6.2帖のお部屋です。
木目な温かみを感じるナチュラル内装になっています。
落ち着きあるホワイトで明るいお部屋。
窓もついており、自然光も取り込める作りです。

洋室には、
ウォークインクローゼットが備わっています。
L字に棚とハンガーパイプが付いており、
収納整理もしやすそうです。
また十分な広さがあり、
キャリーバッグなど大きな物も置いておけます。
いかがでしたか?
ナチュラルシックなタワマン2LDKです。
明るい木目調の開放感あふれる内装。
洗練されたホテルライクな雰囲気も感じます。
またお部屋には、WICもついていあり、
収納エリアもしっかり確保されています。
気になった方は、お気軽にお問い合わせください。
| 物件情報 | |
|---|---|
![]() |
|
| 間取り・平米 | 2LDK 専有面積:77.61 ㎡ |
| 所在地 | 大阪大阪市中央区南本町2丁目 |
| アクセス | 大阪メトロ堺筋線 堺筋本町駅 徒歩3分 |
| 物件種別・規模 | マンション 地上43階建 |
| 募集状況 | 要確認 |
| お問い合せ 記事番号 | 14159 |
※物件情報は常に流通しているため、お問合せのタイミングによっては募集状況が異なる場合がございます。
