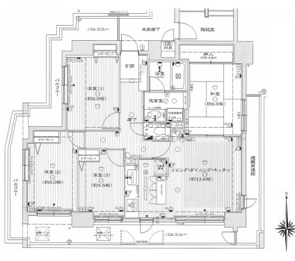
£´LDK³ÑÉô²°Æî¸þ¤¥Ð¥ë¥³¥Ë¡¼¤Î¤ªÉô²°
¡Ú¥Þ¥ó¥·¥ç¥ó¡ÛÊÔ½¸¥¹¥¿¥Ã¥Õ¡§´ßÅÄ

½»Ç·¹¾¶èÊ´ÉÍ£³ÃúÌÜ
Æî³¤ËÜÀþ¡ÖÊ´Éͱء×ÅÌÊâÌó£¶Ê¬
¹ñÆ»26¹æÀþ±è¤¤¤Î¥Þ¥ó¥·¥ç¥ó
»Í¤Ä¶¶Àþ¡Ö¶Ì½Ð±Ø¡×ÊýÌ̤âÅÌÊâ·÷¤Ç¤¹¡£
2000ǯ11·îÃۤΥޥ󥷥ç¥ó
13³¬·ú¤Æ¤Î10³¬Éôʬ
Æî¡¢À¾¡¢Ë̤˥Х륳¥Ë¡¼¤Î¤¢¤ë»°Êý³ÑÉô²°
Å즤ˤˤⳫ¸ýÉô¤Î¤¢¤ëÆÈΩÀ¤Î¹â¤¤¤ªÉô²°
´Ö¼è¤ê¤â£´LDK¡¢81.82Ö
À¤ÂÓ¿ô¤¬Â¿¤¯Éô²°¿ô¤¬É¬Íפʥե¡¥ß¥ê¡¼¤Ë¤Ïɬ¸«¤Ç¤¹¡£
¼þÊդ˹⤤·úʪ¤â¾¯¤Ê¤¯
ÍÛÅö¤¿¤ê¡¢Ä¯Ë¾Îɤµ¤½¤¦¤Ç¤¹¡£
¤³¤Á¤é¤Î¥Þ¥ó¥·¥ç¥ó¤¬
·î¡¹Ìó102,877±ß¡Ê¼ÚÆþ¶â3,880Ëü±ß¡¢ÊÑÆ°¶âÍø0.625¡ó¡¢½»Âð¥í¡¼¥ó35ǯÊֺѡË
³§Íͤ«¤é¤Î¤ªÌä¹ç¤»¤ªÂÔ¤Á¤·¤Æ¤ª¤ê¤Þ¤¹¡£
| ʪ·ï¾ðÊó | |
|---|---|
![]() |
|
| ´Ö¼è¤ê¡¦Ê¿ÊÆ | 4LDK¡¡ÀìÍÌÌÀÑ¡§81.82 ㎡ |
| ÅÚÃÏÌÌÀÑ | ¡¼ |
| ½êºßÃÏ | ÂçºåÂçºå»Ô½»Ç·¹¾¶èÊ´ÉÍ3ÃúÌÜ |
| ¥¢¥¯¥»¥¹ | Æî³¤ËÜÀþ Ê´É걯 ÅÌÊâ6ʬ |
| ʪ·ï¼ïÊÌ¡¦µ¬ÌÏ | ¥Þ¥ó¥·¥ç¥ó¡¡ÃϾå14³¬·ú |
| Ê罸¾õ¶· | Í׳Îǧ |
| ¤ªÌ䤤¹ç¤» µ»öÈÖ¹æ | 14059 |
¢¨Êª·ï¾ðÊó¤Ï¾ï¤ËήÄ̤·¤Æ¤¤¤ë¤¿¤á¡¢¤ªÌä¹ç¤»¤Î¥¿¥¤¥ß¥ó¥°¤Ë¤è¤Ã¤Æ¤ÏÊ罸¾õ¶·¤¬°Û¤Ê¤ë¾ì¹ç¤¬¤´¤¶¤¤¤Þ¤¹¡£
