眺望を活かす、充実収納なシック2SLDK
【マンション】編集スタッフ:稲垣

今回ご紹介するのは、大阪市西区新町にあるマンションの1部屋。
ウッド&シックな新築タワマン部屋です。
Osaka Metro千日前線「西長堀駅」徒歩4分
Osaka Metro長堀鶴見緑地線「西長堀駅」徒歩4分
Osaka Metro四つ橋線「四ツ橋駅」徒歩10分
と複数路線アクセスになっています。
徒歩3分圏内には、
スーパーやコンビニが揃っており、買い物面も困りません。
また、靱公園や市立中央図書館、西区役所などの公共施設も徒歩圏内◎
自然や緑に触れ合えるのも嬉しい環境です。

2025年3月築の38階建て新築タワマン。
ホワイト×ブラックのモノトーンデザインな外観です。

早速、室内を見ていきます。
玄関は、ホワイト基調の明るい広々空間です。
ブラックな玄関扉がアクセントで、
高級感も感じる内装になっています。
玄関エリアには、
広々したシューズボックスも完備されています。

続いて、水回りです。
お手洗いは、
白で統一された、すっきりとした空間になっています。
専用の手洗い場付きで、設備面も◎
壁側の吊り収納だけでなく、
手洗い場下も収納エリアと収納スペースにも困りません。

洗面脱衣所は、ホワイト基調で落ち着きある内装です。
大きな三面鏡タイプの洗面台は、
広々スペースが確保されており、
ファミリーさんにも使いやすいサイズになっています。
また、同じく洗面脱衣所には、
洗濯機置き場もしっかり確保されています
上部についたハンガーポール付きの収納棚も魅力的!

浴室は、
大理石調壁が目を引く、ラグジュアリーな空間です。
ワイドな浴槽が魅力的なホテルライク仕様になっています。

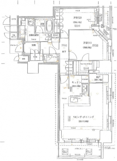
LDKに入ってすぐのところは、キッチンエリアです。
システムキッチンは、L字型&ホワイト基調な3.6帖の空間。
使い勝手もデザイン性も◎な作りになっています。
リビング側への開放感もよく、
会話のしやすさ点も魅力的です。

リビングダイニングは、17.9帖の広々サイズです。
天井埋込型のダウンライトがある落ち着いた雰囲気の空間。
木目調のフローリングがお洒落さを際立たせる
シックな内装になっています。

バルコニーへ続く掃き出し窓だけでなく、
二面採光になるよう窓が配置されており、
開放感と眺望を最大限に活かす設計になっています。
タワマンならではの眺望を活かした空間が魅力的です。

LDKの他には、お部屋が2部屋。
1部屋は、6.1帖の洋室です。
落ち着いたブラウンデザインな高級感も感じる内装。
シンプルな縦長の間取りなので、
家具も配置しやすくなっています。

2部屋は、8帖の洋室です。
コーナー窓活用した明るく柔らかな内装。
眺望を上手く取り込みんだお部屋になっています。

洋室には、ウォークインクローゼットも付いています。
左右&コの字に
ハンバーパイプと棚がついた大容量スペースです。
衣類だけでなく。、
季節物や大型の荷物もすっきり収まる
整頓しやすい作りになっています。

最後に、こちらが眺望です!
高層階から広がる圧巻パノラマビュー。
夕焼けや街の夜景を一望できるのは、
タワーマンションならではの魅力です。
いかがでしたか?
ウッド&シックな新築タワマン部屋です。
天井埋込型のダウンライトがある落ち着いた雰囲気の空間。
木目調のフローリングがお洒落さを際立たせる
シックな内装になっています。
洋室には、大容量のウォークインクローゼット付きと
収納面も充実しているのも嬉しいポイントです◎
気になった方は、お気軽にお問い合わせください。
| 物件情報 | |
|---|---|
![]() |
|
| 間取り・平米 | 2SLDK 専有面積:89.5 ㎡ |
| 所在地 | 大阪大阪市西区新町3丁目 |
| アクセス | 大阪メトロ千日前線 西長堀駅 徒歩4分 |
| 物件種別・規模 | マンション 地上38階建 |
| 募集状況 | 要確認 |
| お問い合せ 記事番号 | 14025 |
※物件情報は常に流通しているため、お問合せのタイミングによっては募集状況が異なる場合がございます。
