Âçºå»ÔÀ¾¶è ÄÂÂßʪ·ï°ìÍ÷

Âçºå»ÔÀ¾¶è¤ÎÄÂÂߥޥ󥷥ç¥ó¡¦°ì¸Í·ú¤Æ¤ò½¸¤á¤Þ¤·¤¿¡£Âçºå»ÔÀ¾¶è¤Ï¡¢Âçºå»ÔÆâ¤Ç¤âÆÃ¤Ë¿Íµ¤¤Î¤¢¤ë¥¨¥ê¥¢¤Î°ì¤Ä¤Ç¤¹¡£¤³¤Î¥¨¥ê¥¢¤Ï¥Ó¥¸¥Í¥¹³¹¤È½»ÂðÃϤ¬Ä´Ï¤·¡¢Â¿ºÌ¤ÊÀ¸³è»ÜÀߤ䥢¥¯¥»¥¹¤ÎÎɤµ¤¬ÆÃħ¤Ç¤¹¡£ÄÂÂßʪ·ï¤Ï¡¢¿·ÃÛ¤«¤é¥ê¥Î¥Ù¡¼¥·¥ç¥ó¤µ¤ì¤¿Êª·ï¤Þ¤ÇÍÍ¡¹¤ÊÁªÂò»è¤¬¤¢¤ê¤Þ¤¹¡£À¾¶è¤ÏÂçºå¤ÎÃæ¿´ÃϤ˰ÌÃÖ¤·¡¢Âçºå±Ø¤äÇßÅÄ¥¨¥ê¥¢¤Ø¤Î¥¢¥¯¥»¥¹¤¬Îɹ¥¤Ç¡¢»Å»ö¤ä¥·¥ç¥Ã¥Ô¥ó¥°¤ËÊØÍø¤Ç¤¹¡£¤Þ¤¿¡¢Âçºå»ÔÀ¾¶è¤Ï³ØÀ¸¡¢¼ã¼ê¥Ó¥¸¥Í¥¹¥Ñ¡¼¥½¥ó¡¢¥Õ¥¡¥ß¥ê¡¼¤Ê¤ÉÉý¹­¤¤Áؤ˿͵¤¤¬¤¢¤ê¤Þ¤¹¡£¥¨¥ê¥¢Æâ¤Ë¤ÏÈþÌ£¤·¤¤°û¿©Å¹¤ä¥«¥Õ¥§¡¢¸ø±à¤Ê¤É¤â½¼¼Â¤·¤Æ¤ª¤ê¡¢Æü¾ïÀ¸³è¤òË­¤«¤Ë¤¹¤ëÌ¥ÎϤ¬¤¤¤Ã¤Ñ¤¤¤Ç¤¹¡£Æø¤ä¤«¤Ç¤¢¤ê¤Ê¤¬¤é¤âÀŤ«¤Ê½»´Ä¶­¤¬À°¤Ã¤Æ¤ª¤ê¡¢½»¤ß¤ä¤¹¤¤¥¨¥ê¥¢¤È¤·¤Æ¿Íµ¤¤ò½¸¤á¤Æ¤¤¤Þ¤¹¡£

¹Ê¤ê¹þ¤ó¤Ç¸¡º÷¡Ê¤³¤Î¥Ð¡¼¤ò¥¯¥ê¥Ã¥¯¡Ë

ʪ·ï¼ïÊ̤ê

²ÈÄÂ

´Ö¼è¤ê

ÀìÍ­ÌÌÀÑ

ÀßÈ÷

Âçºå»ÔÀ¾¶è¡¦»ÔÆâÃæ¿´Éô¤Î¤ª¤¹¤¹¤áÄÂÂߡʥޥ󥷥ç¥ó¡¦¸Í·ú¤Æ¡Ë

¥¹¥¿¥¤¥ê¥Ã¥·¥å¤Ê¥ª¥Õ¥£¥¹¤Ï¤¤¤«¤¬¡÷À¾Å·Ëþ

Âçºå»ÔÆâ¥Ó¥¸¥Í¥¹Ãæ¿´¥¨¥ê¥¢¤ÎÀ¾Å·ËþºÛȽ½ê¤â¶á¤¤¤¿¤á¡¢»Î¶È´Ø·¸¤Î¥ª¥Õ¥£¥¹¤¬Â¿¤¯½¸¤Þ¤ë¥¨¥ê¥¢¡£Íä²°¶¶¡¢ÇßÅÄ¡¢ËÌ¿·ÃϤʤÉÊ£¿ôÏ©Àþ¤Ø¤Î¥¢¥¯¥»¥¹¤¬ÅÌÊâ·÷Æâ 2015ǯÃÛÅ´¹ü¤ÃϾå10³¬·ú¥¬¥é¥¹Ä¥¤ê¤Ç¥¹..

ºÎ¸÷Îɹ¥¤Ê¥ª¥Õ¥£¥¹¡÷ÆîËÜÄ®

Âçºå¥á¥È¥íºæ¶ÚÀþ/Ãæ±ûÀþ¡Úºæ¶ÚËÜÄ®±Ø¡ÛÅÌÊâ2Ê¬Ãæ±ûÂçÄ̤ê¤â¶á¤¯¼Ö¤Þ¤Ç¤Î°Üư¤Î¤¢¤ë¶È¼ï¤Ë¤âÎɤ¤Î©ÃÏ ¾¼ÏÂ63ǯÃÛÅ´¹üÅ´¶Ú¥³¥ó¥¯¥ê¡¼¥È¤7³¬·ú¸¼´Ø³«Êü»þ´ÖÊ¿ÆüÅÚÍËÆü¡Ê8¡§00-20¡§00¡ËÆü½Ë¤Ï..

¥ï¥ó¥Õ¥í¥¢Âß¡÷´¤Ä®

Âçºå»ÔÃæ±û¶è´¤Ä®1ÃúÌܺæ¶Ú¤ËÌ̤·¡¢Âçºå¥á¥È¥íºæ¶ÚÀþ¡Úºæ¶ÚËÜÄ®±Ø¡ÛÅÌÊâ3ʬ 1990ǯÃÛÅ´¹üÅ´¶Ú¥³¥ó¥¯¥ê¡¼¥È¤ÃϾå10³¬Ãϲ¼1³¬·ú¤Æ1³¬¸¼´Ø¥ª¡¼¥È¥í¥Ã¥¯¤¢¤ê¡ÊÅÚÆü½ËÌë´Ö¡ËÆÈΩÀ­¤Î¹â¤¤¥ï¥ó¥Õ¥í¥¢..

¥Ç¥¶¥¤¥Ê¡¼¥º¥ª¥Õ¥£¥¹·ó½»µï¡÷ð×ËÜÄ®

À¾¶èð×ËÜÄ®1ÃúÌÜÂçºå¥á¥È¥í»Í¤Ä¶¶Àþ¡ÚËÜÄ®±Ø¡ÛÅÌÊâ3ʬÅÔ²ñ¤Î¥ª¥¢¥·¥¹¡Ú¤¦¤Ä¤Ü¸ø±à¡Û¤ÎË̦¤ÎÀŤ«¤ÊÄ̤ê¤Ë°ÌÃÖ¤¹¤ë¥Ç¥¶¥¤¥Ê¡¼¥ºÊª·ï Å´¹ü¤4³¬·úËÜÆü¤Î¤´¾Ò²ð¤ÏºÇ¾å³¬¤Î4³¬Éôʬ59.99­ÖÌó18.1..

Ãæ±ûÂçÄ̤ê±è¤¤¡¡¥ê¥Î¥Ù¥ª¥Õ¥£¥¹

Âçºå¥á¥È¥íÃæ±ûÀþ/ºæ¶ÚÀþ¡Úºæ¶ÚËÜÄ®±Ø¡ÛÅÌÊâ1Ê¬Ãæ±ûÂçÄ̤ê¤ËÌ̤¹¤ë¥¢¥¯¥»¥¹ÎϤι⤤ΩÃÏ 1977ǯ3·îÃÛ¥óÅ´¹üÅ´¶Ú¥³¥ó¥¯¥ê¡¼¥È¤Ãϲ¼1³¬ÃϾå10³¬·ú¤´¾Ò²ð¤Î¤ªÉô²°¤Ï2³¬140.4­ÖÌó42.47..

ÅÚº´ËÙÄ̤ê±è¤¤¥ï¥ó¥Õ¥í¥¢Âߤ·¥ª¥Õ¥£¥¹

Âçºå»ÔÀ¾¶è¹¾¸ÍËÙ1ÃúÌܸòÄ̤ÎÊØ¤¬Îɤ¤ÅÚº´ËÙÄ̤ê¤È¤Ê¤Ë¤ï¶Ú¤Ë¶á¤¯Âçºå¥á¥È¥í»Í¤Ä¶¶Àþ¡ÚÈî¸å¶¶±Ø¡ÛÅÌÊâ5ʬ¤ÎΩÃÏ1990ǯÃÛÅ´¹ü¤11³¬·úÀ¾¸þ¤­¤Ç¥¬¥é¥¹Ì̤⿤¯ºÎ¸÷¤¬¤è¤¯³«ÊüŪ¤Ê¶õ´Ö 59.5­ÖÌó..

1219 Åï 9993 Éô²°
133¡Á144·ï¤òɽ¼¨¤·¤Æ¤¤¤Þ¤¹

¥¢¡¼¥Ð¥Í¥Ã¥¯¥¹µþÄ®ËÙ(Èî¸å¶¶¤ÎÄÂÂߥޥ󥷥ç¥ó)

Âçºå¤ÎÄÂÂߡ֡׳°´Ñ
Âçºå»ÔÀ¾¶èµþÄ®ËÙ
Osaka Metro»Í¤Ä¶¶Àþ
¡ÖÈî¸å¶¶±Ø¡×ÅÌÊâ7ʬ
2021/10 ÃÛ4ǯ / 15³¬·ú
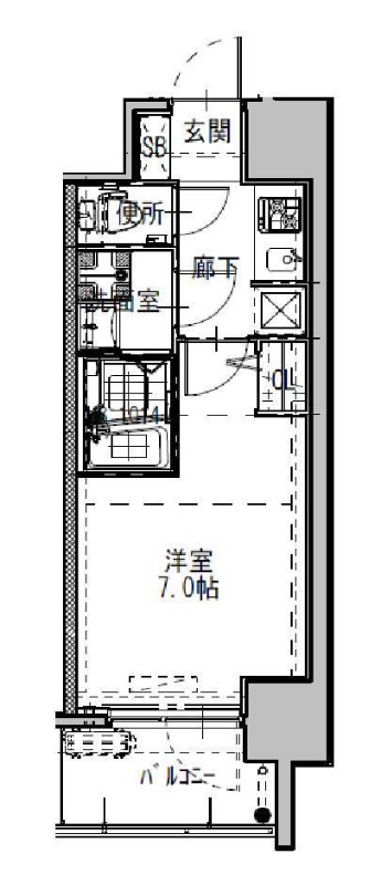
´Ö¼è
-Ëü±ß / 1DK
¶¦:- Àì:27.27㎡¡Ã6³¬
Éß:- Îé:-
´Ö¼è
-Ëü±ß / 1DK
¶¦:- Àì:26.62㎡¡Ã11³¬
Éß:- Îé:-
´Ö¼è
-Ëü±ß / 1LDK
¶¦:- Àì:32.59㎡¡Ã15³¬
Éß:- Îé:-
´Ö¼è
-Ëü±ß / 1DK
¶¦:- Àì:27.23㎡¡Ã13³¬
Éß:- Îé:-
´Ö¼è
-Ëü±ß / 1DK
¶¦:- Àì:27.01㎡¡Ã11³¬
Éß:- Îé:-
´Ö¼è
-Ëü±ß / 1LDK
¶¦:- Àì:32.8㎡¡Ã14³¬
Éß:- Îé:-
´Ö¼è
-Ëü±ß / 1DK
¶¦:- Àì:27.23㎡¡Ã3³¬
Éß:- Îé:-
´Ö¼è
-Ëü±ß / 1DK
¶¦:- Àì:27.23㎡¡Ã7³¬
Éß:- Îé:-
´Ö¼è
-Ëü±ß / 1DK
¶¦:- Àì:27.07㎡¡Ã5³¬
Éß:- Îé:-
´Ö¼è
-Ëü±ß / 1LDK
¶¦:- Àì:32.8㎡¡Ã6³¬
Éß:- Îé:-
´Ö¼è
-Ëü±ß / 1DK
¶¦:- Àì:27.23㎡¡Ã14³¬
Éß:- Îé:-
´Ö¼è
-Ëü±ß / 1DK
¶¦:- Àì:26.26㎡¡Ã4³¬
Éß:- Îé:-
´Ö¼è
-Ëü±ß / 1LDK
¶¦:- Àì:39.67㎡¡Ã12³¬
Éß:- Îé:-
´Ö¼è
-Ëü±ß / 1LDK
¶¦:- Àì:39.67㎡¡Ã2³¬
Éß:- Îé:-
´Ö¼è
-Ëü±ß / 1LDK
¶¦:- Àì:32.8㎡¡Ã7³¬
Éß:- Îé:-
´Ö¼è
-Ëü±ß / 1LDK
¶¦:- Àì:39.67㎡¡Ã5³¬
Éß:- Îé:-
´Ö¼è
-Ëü±ß / 1LDK
¶¦:- Àì:32.8㎡¡Ã9³¬
Éß:- Îé:-
´Ö¼è
-Ëü±ß / 1LDK
¶¦:- Àì:32.8㎡¡Ã11³¬
Éß:- Îé:-
´Ö¼è
-Ëü±ß / 1LDK
¶¦:- Àì:32.8㎡¡Ã2³¬
Éß:- Îé:-
´Ö¼è
-Ëü±ß / 1LDK
¶¦:- Àì:32.8㎡¡Ã10³¬
Éß:- Îé:-
´Ö¼è
-Ëü±ß / 1DK
¶¦:- Àì:26.67㎡¡Ã6³¬
Éß:- Îé:-
´Ö¼è
-Ëü±ß / 1DK
¶¦:- Àì:27.23㎡¡Ã11³¬
Éß:- Îé:-
´Ö¼è
-Ëü±ß / 1LDK
¶¦:- Àì:39.67㎡¡Ã14³¬
Éß:- Îé:-
´Ö¼è
-Ëü±ß / 1DK
¶¦:- Àì:26.67㎡¡Ã2³¬
Éß:- Îé:-

£Í£Ù¹¾Ç·»ÒÅç¥Þ¥ó¥·¥ç¥ó(°¤ÇȺ¤ÎÄÂÂߥޥ󥷥ç¥ó)

Âçºå¤ÎÄÂÂߡ֡׳°´Ñ
Âçºå»ÔÀ¾¶è¹¾Ç·»ÒÅç
Osaka MetroÃæ±ûÀþ
¡Ö°¤ÇȺ±ء×ÅÌÊâ4ʬ
2008/02 ÃÛ18ǯ / 8³¬·ú
´Ö¼è
-Ëü±ß / 1K
¶¦:- Àì:20.17㎡¡Ã4³¬
Éß:- Îé:-
´Ö¼è
-Ëü±ß / 1K
¶¦:- Àì:20.17㎡¡Ã7³¬
Éß:- Îé:-
´Ö¼è
-Ëü±ß / 1K
¶¦:- Àì:20.6㎡¡Ã3³¬
Éß:- Îé:-
´Ö¼è
6.1Ëü±ß / 1K
¶¦:11,000±ß Àì:20.43㎡¡Ã6³¬
Éß:̵ÎÁ Îé:1¥ö·î
´Ö¼è
-Ëü±ß / 1K
¶¦:- Àì:20.43㎡¡Ã5³¬
Éß:- Îé:-
´Ö¼è
-Ëü±ß / 1K
¶¦:- Àì:20.43㎡¡Ã6³¬
Éß:- Îé:-

SERENiTEËÜÄ®reflet(°¤ÇȺ¤ÎÄÂÂߥޥ󥷥ç¥ó)

Âçºå¤ÎÄÂÂߡ֡׳°´Ñ
Âçºå»ÔÀ¾¶èÀ¾ËÜÄ®
Osaka MetroÃæ±ûÀþ
¡Ö°¤ÇȺ±ء×ÅÌÊâ2ʬ
2019/01 ÃÛ7ǯ / 15³¬·ú
´Ö¼è
-Ëü±ß / 1DK
¶¦:- Àì:28.19㎡¡Ã8³¬
Éß:- Îé:-
´Ö¼è
-Ëü±ß / 1DK
¶¦:- Àì:28.19㎡¡Ã14³¬
Éß:- Îé:-
´Ö¼è
-Ëü±ß / 1K
¶¦:- Àì:22.4㎡¡Ã4³¬
Éß:- Îé:-
´Ö¼è
-Ëü±ß / 1DK
¶¦:- Àì:33.28㎡¡Ã2³¬
Éß:- Îé:-
´Ö¼è
-Ëü±ß / 1DK
¶¦:- Àì:28.19㎡¡Ã9³¬
Éß:- Îé:-
´Ö¼è
-Ëü±ß / 1DK
¶¦:- Àì:33.28㎡¡Ã13³¬
Éß:- Îé:-
´Ö¼è
-Ëü±ß / 1K
¶¦:- Àì:22.95㎡¡Ã10³¬
Éß:- Îé:-
´Ö¼è
-Ëü±ß / 1DK
¶¦:- Àì:28.19㎡¡Ã12³¬
Éß:- Îé:-
´Ö¼è
-Ëü±ß / 1K
¶¦:- Àì:22.95㎡¡Ã15³¬
Éß:- Îé:-
´Ö¼è
-Ëü±ß / 1K
¶¦:- Àì:22.95㎡¡Ã4³¬
Éß:- Îé:-
´Ö¼è
-Ëü±ß / 1DK
¶¦:- Àì:23.04㎡¡Ã9³¬
Éß:- Îé:-
´Ö¼è
-Ëü±ß / 1K
¶¦:- Àì:22.95㎡¡Ã7³¬
Éß:- Îé:-
´Ö¼è
-Ëü±ß / 1DK
¶¦:- Àì:23.04㎡¡Ã13³¬
Éß:- Îé:-
´Ö¼è
-Ëü±ß / 1DK
¶¦:- Àì:28.19㎡¡Ã3³¬
Éß:- Îé:-
´Ö¼è
-Ëü±ß / 1DK
¶¦:- Àì:28.19㎡¡Ã13³¬
Éß:- Îé:-
´Ö¼è
-Ëü±ß / 1K
¶¦:- Àì:20.66㎡¡Ã14³¬
Éß:- Îé:-
´Ö¼è
-Ëü±ß / 1K
¶¦:- Àì:22.95㎡¡Ã11³¬
Éß:- Îé:-
´Ö¼è
-Ëü±ß / 1DK
¶¦:- Àì:23.04㎡¡Ã10³¬
Éß:- Îé:-
´Ö¼è
-Ëü±ß / 1DK
¶¦:- Àì:28.19㎡¡Ã9³¬
Éß:- Îé:-
´Ö¼è
-Ëü±ß / 1K
¶¦:- Àì:21.9㎡¡Ã8³¬
Éß:- Îé:-
´Ö¼è
-Ëü±ß / 1DK
¶¦:- Àì:28.19㎡¡Ã10³¬
Éß:- Îé:-
´Ö¼è
-Ëü±ß / 1DK
¶¦:- Àì:33.28㎡¡Ã5³¬
Éß:- Îé:-
´Ö¼è
-Ëü±ß / 1DK
¶¦:- Àì:33.28㎡¡Ã3³¬
Éß:- Îé:-
´Ö¼è
-Ëü±ß / 1DK
¶¦:- Àì:33.28㎡¡Ã14³¬
Éß:- Îé:-
´Ö¼è
-Ëü±ß / 1DK
¶¦:- Àì:33.28㎡¡Ã15³¬
Éß:- Îé:-
´Ö¼è
-Ëü±ß / 1K
¶¦:- Àì:22.95㎡¡Ã10³¬
Éß:- Îé:-
´Ö¼è
-Ëü±ß / 1DK
¶¦:- Àì:28.19㎡¡Ã2³¬
Éß:- Îé:-
´Ö¼è
-Ëü±ß / 1K
¶¦:- Àì:22.06㎡¡Ã11³¬
Éß:- Îé:-
´Ö¼è
-Ëü±ß / 1K
¶¦:- Àì:21.9㎡¡Ã13³¬
Éß:- Îé:-
´Ö¼è
-Ëü±ß / 1K
¶¦:- Àì:21.5㎡¡Ã15³¬
Éß:- Îé:-
´Ö¼è
-Ëü±ß / 1DK
¶¦:- Àì:28.19㎡¡Ã6³¬
Éß:- Îé:-
´Ö¼è
-Ëü±ß / 1K
¶¦:- Àì:21.9㎡¡Ã7³¬
Éß:- Îé:-
´Ö¼è
-Ëü±ß / 1DK
¶¦:- Àì:33.28㎡¡Ã7³¬
Éß:- Îé:-
´Ö¼è
-Ëü±ß / 1DK
¶¦:- Àì:23.04㎡¡Ã14³¬
Éß:- Îé:-
´Ö¼è
-Ëü±ß / 1K
¶¦:- Àì:22.06㎡¡Ã12³¬
Éß:- Îé:-
´Ö¼è
-Ëü±ß / 1K
¶¦:- Àì:22.06㎡¡Ã13³¬
Éß:- Îé:-
´Ö¼è
-Ëü±ß / 1DK
¶¦:- Àì:23.04㎡¡Ã15³¬
Éß:- Îé:-
´Ö¼è
-Ëü±ß / 1K
¶¦:- Àì:22.06㎡¡Ã12³¬
Éß:- Îé:-
´Ö¼è
-Ëü±ß / 1DK
¶¦:- Àì:28.19㎡¡Ã15³¬
Éß:- Îé:-
´Ö¼è
-Ëü±ß / 1DK
¶¦:- Àì:23.04㎡¡Ã12³¬
Éß:- Îé:-
´Ö¼è
-Ëü±ß / 1K
¶¦:- Àì:22.4㎡¡Ã11³¬
Éß:- Îé:-
´Ö¼è
-Ëü±ß / 1K
¶¦:- Àì:21.9㎡¡Ã14³¬
Éß:- Îé:-
´Ö¼è
-Ëü±ß / 1DK
¶¦:- Àì:28.19㎡¡Ã8³¬
Éß:- Îé:-
´Ö¼è
-Ëü±ß / 1K
¶¦:- Àì:22.06㎡¡Ã10³¬
Éß:- Îé:-
´Ö¼è
-Ëü±ß / 1K
¶¦:- Àì:21.9㎡¡Ã4³¬
Éß:- Îé:-
´Ö¼è
-Ëü±ß / 1K
¶¦:- Àì:22.06㎡¡Ã10³¬
Éß:- Îé:-
´Ö¼è
-Ëü±ß / 1DK
¶¦:- Àì:28.19㎡¡Ã5³¬
Éß:- Îé:-
´Ö¼è
-Ëü±ß / 1DK
¶¦:- Àì:28.19㎡¡Ã9³¬
Éß:- Îé:-

PHOENIXËÌËÙ¹¾(À¾Ä¹ËÙ¤ÎÄÂÂߥޥ󥷥ç¥ó)

Âçºå¤ÎÄÂÂߡ֡׳°´Ñ
Âçºå»ÔÀ¾¶èËÌËÙ¹¾
Osaka MetroĹËÙÄḫÎÐÃÏÀþ
¡ÖÀ¾Ä¹Ëٱء×ÅÌÊâ3ʬ
2021/12 ÃÛ4ǯ / 13³¬·ú
´Ö¼è
-Ëü±ß / 1LDK
¶¦:- Àì:33.83㎡¡Ã11³¬
Éß:- Îé:-
´Ö¼è
-Ëü±ß / 1LDK
¶¦:- Àì:33.83㎡¡Ã9³¬
Éß:- Îé:-
´Ö¼è
-Ëü±ß / 1LDK
¶¦:- Àì:33.83㎡¡Ã13³¬
Éß:- Îé:-
´Ö¼è
-Ëü±ß / 1LDK
¶¦:- Àì:33.83㎡¡Ã10³¬
Éß:- Îé:-
´Ö¼è
-Ëü±ß / 1LDK
¶¦:- Àì:30.13㎡¡Ã12³¬
Éß:- Îé:-
´Ö¼è
-Ëü±ß / 1LDK
¶¦:- Àì:33.83㎡¡Ã2³¬
Éß:- Îé:-
´Ö¼è
-Ëü±ß / 1LDK
¶¦:- Àì:33.83㎡¡Ã6³¬
Éß:- Îé:-
´Ö¼è
-Ëü±ß / 1LDK
¶¦:- Àì:30.13㎡¡Ã5³¬
Éß:- Îé:-
´Ö¼è
-Ëü±ß / 1LDK
¶¦:- Àì:33.83㎡¡Ã7³¬
Éß:- Îé:-
´Ö¼è
-Ëü±ß / 1LDK
¶¦:- Àì:33.83㎡¡Ã5³¬
Éß:- Îé:-
´Ö¼è
-Ëü±ß / 1LDK
¶¦:- Àì:30.13㎡¡Ã6³¬
Éß:- Îé:-
´Ö¼è
-Ëü±ß / 1LDK
¶¦:- Àì:30.13㎡¡Ã8³¬
Éß:- Îé:-
´Ö¼è
-Ëü±ß / 1LDK
¶¦:- Àì:30.13㎡¡Ã4³¬
Éß:- Îé:-
´Ö¼è
-Ëü±ß / 1LDK
¶¦:- Àì:30.13㎡¡Ã9³¬
Éß:- Îé:-
´Ö¼è
-Ëü±ß / 1LDK
¶¦:- Àì:33.83㎡¡Ã11³¬
Éß:- Îé:-
´Ö¼è
-Ëü±ß / 1LDK
¶¦:- Àì:33.83㎡¡Ã5³¬
Éß:- Îé:-
´Ö¼è
-Ëü±ß / 1LDK
¶¦:- Àì:30.13㎡¡Ã3³¬
Éß:- Îé:-
´Ö¼è
-Ëü±ß / 1LDK
¶¦:- Àì:30.13㎡¡Ã2³¬
Éß:- Îé:-
´Ö¼è
-Ëü±ß / 1LDK
¶¦:- Àì:30.13㎡¡Ã7³¬
Éß:- Îé:-
´Ö¼è
-Ëü±ß / 1LDK
¶¦:- Àì:33.83㎡¡Ã12³¬
Éß:- Îé:-
´Ö¼è
-Ëü±ß / 1LDK
¶¦:- Àì:33.83㎡¡Ã11³¬
Éß:- Îé:-

JINO¿·Ä®(À¾Ä¹ËÙ¤ÎÄÂÂߥޥ󥷥ç¥ó)

Âçºå¤ÎÄÂÂߡ֡׳°´Ñ
Âçºå»ÔÀ¾¶è¿·Ä®
Osaka MetroÀéÆüÁ°Àþ
¡ÖÀ¾Ä¹Ëٱء×ÅÌÊâ3ʬ
2019/02 ÃÛ7ǯ / 9³¬·ú
´Ö¼è
-Ëü±ß / 1K
¶¦:- Àì:29.64㎡¡Ã9³¬
Éß:- Îé:-
´Ö¼è
-Ëü±ß / 1K
¶¦:- Àì:29.64㎡¡Ã2³¬
Éß:- Îé:-
´Ö¼è
-Ëü±ß / 1K
¶¦:- Àì:29.64㎡¡Ã8³¬
Éß:- Îé:-
´Ö¼è
-Ëü±ß / 1K
¶¦:- Àì:26.78㎡¡Ã4³¬
Éß:- Îé:-
´Ö¼è
-Ëü±ß / 1K
¶¦:- Àì:26.78㎡¡Ã6³¬
Éß:- Îé:-
´Ö¼è
-Ëü±ß / 1K
¶¦:- Àì:29.64㎡¡Ã7³¬
Éß:- Îé:-
´Ö¼è
-Ëü±ß / 1K
¶¦:- Àì:29.64㎡¡Ã5³¬
Éß:- Îé:-
´Ö¼è
-Ëü±ß / 1K
¶¦:- Àì:29.64㎡¡Ã3³¬
Éß:- Îé:-

¥µ¥Ë¡¼¥Ï¥¦¥¹ÆîËÙ¹¾(À¾Ä¹ËÙ¤ÎÄÂÂߥޥ󥷥ç¥ó)

Âçºå¤ÎÄÂÂߡ֡׳°´Ñ
Âçºå»ÔÀ¾¶èÆîËÙ¹¾
Osaka MetroĹËÙÄḫÎÐÃÏÀþ
¡ÖÀ¾Ä¹Ëٱء×ÅÌÊâ7ʬ
2013/07 ÃÛ12ǯ / 9³¬·ú
´Ö¼è
-Ëü±ß / 1LDK
¶¦:- Àì:30.03㎡¡Ã2³¬
Éß:- Îé:-
´Ö¼è
-Ëü±ß / 1LDK
¶¦:- Àì:30.03㎡¡Ã3³¬
Éß:- Îé:-
´Ö¼è
-Ëü±ß / 1LDK
¶¦:- Àì:30.03㎡¡Ã7³¬
Éß:- Îé:-
´Ö¼è
-Ëü±ß / 1LDK
¶¦:- Àì:30.03㎡¡Ã3³¬
Éß:- Îé:-
´Ö¼è
-Ëü±ß / 1LDK
¶¦:- Àì:30.03㎡¡Ã4³¬
Éß:- Îé:-
´Ö¼è
-Ëü±ß / 1LDK
¶¦:- Àì:30.03㎡¡Ã6³¬
Éß:- Îé:-
´Ö¼è
-Ëü±ß / 1DK
¶¦:- Àì:25.41㎡¡Ã9³¬
Éß:- Îé:-
´Ö¼è
-Ëü±ß / 1LDK
¶¦:- Àì:30.03㎡¡Ã9³¬
Éß:- Îé:-
´Ö¼è
-Ëü±ß / 1DK
¶¦:- Àì:25.41㎡¡Ã5³¬
Éß:- Îé:-
´Ö¼è
-Ëü±ß / 1LDK
¶¦:- Àì:30.03㎡¡Ã5³¬
Éß:- Îé:-
´Ö¼è
-Ëü±ß / 1DK
¶¦:- Àì:25.41㎡¡Ã4³¬
Éß:- Îé:-
´Ö¼è
-Ëü±ß / 1DK
¶¦:- Àì:25.41㎡¡Ã8³¬
Éß:- Îé:-
´Ö¼è
-Ëü±ß / 1DK
¶¦:- Àì:25.41㎡¡Ã3³¬
Éß:- Îé:-

¥×¥é¥¤¥Þ¥ë¿ÙËÜÄ®(°¤ÇȺ¤ÎÄÂÂߥޥ󥷥ç¥ó)

Âçºå¤ÎÄÂÂߡ֡׳°´Ñ
Âçºå»ÔÀ¾¶èð×ËÜÄ®
Osaka MetroÃæ±ûÀþ
¡Ö°¤ÇȺ±ء×ÅÌÊâ3ʬ
2020/05 ÃÛ6ǯ / 13³¬·ú
´Ö¼è
-Ëü±ß / 1K
¶¦:- Àì:22.14㎡¡Ã7³¬
Éß:- Îé:-
´Ö¼è
-Ëü±ß / 1K
¶¦:- Àì:21.75㎡¡Ã9³¬
Éß:- Îé:-
´Ö¼è
-Ëü±ß / 1K
¶¦:- Àì:21.75㎡¡Ã7³¬
Éß:- Îé:-
´Ö¼è
-Ëü±ß / 1K
¶¦:- Àì:21.75㎡¡Ã11³¬
Éß:- Îé:-
´Ö¼è
6.2Ëü±ß / 1K
¶¦:10,000±ß Àì:21.75㎡¡Ã2³¬
Éß:̵ÎÁ Îé:1¥ö·î
´Ö¼è
-Ëü±ß / 1K
¶¦:- Àì:22.14㎡¡Ã6³¬
Éß:- Îé:-

¥¹¥ï¥ó¥º¹¾¸ÍËÙ¥¦¥¨¥¹¥È¥Ñ¡¼¥¯(°¤ÇȺ¤ÎÄÂÂߥޥ󥷥ç¥ó)

Âçºå¤ÎÄÂÂߡ֡׳°´Ñ
Âçºå»ÔÀ¾¶è¹¾¸ÍËÙ
Osaka MetroÃæ±ûÀþ
¡Ö°¤ÇȺ±ء×ÅÌÊâ7ʬ
2012/12 ÃÛ13ǯ / 11³¬·ú
´Ö¼è
-Ëü±ß / 1K
¶¦:- Àì:24.04㎡¡Ã6³¬
Éß:- Îé:-
´Ö¼è
-Ëü±ß / 1K
¶¦:- Àì:23.95㎡¡Ã11³¬
Éß:- Îé:-
´Ö¼è
-Ëü±ß / 1K
¶¦:- Àì:24.04㎡¡Ã11³¬
Éß:- Îé:-
´Ö¼è
-Ëü±ß / 1K
¶¦:- Àì:23.68㎡¡Ã4³¬
Éß:- Îé:-
´Ö¼è
-Ëü±ß / 1K
¶¦:- Àì:24.04㎡¡Ã9³¬
Éß:- Îé:-
´Ö¼è
-Ëü±ß / 1K
¶¦:- Àì:23.95㎡¡Ã7³¬
Éß:- Îé:-

¥×¥ì¥µ¥ó¥¹¹¾¸ÍËÙ(°¤ÇȺ¤ÎÄÂÂߥޥ󥷥ç¥ó)

Âçºå¤ÎÄÂÂߡ֡׳°´Ñ
Âçºå»ÔÀ¾¶è¹¾¸ÍËÙ
Osaka MetroÃæ±ûÀþ
¡Ö°¤ÇȺ±ء×ÅÌÊâ9ʬ
2016/09 ÃÛ9ǯ / 15³¬·ú
´Ö¼è
-Ëü±ß / 1DK
¶¦:- Àì:30.09㎡¡Ã11³¬
Éß:- Îé:-
´Ö¼è
-Ëü±ß / 1DK
¶¦:- Àì:30.09㎡¡Ã8³¬
Éß:- Îé:-
´Ö¼è
-Ëü±ß / 1DK
¶¦:- Àì:30.09㎡¡Ã6³¬
Éß:- Îé:-
´Ö¼è
-Ëü±ß / 1K
¶¦:- Àì:30.09㎡¡Ã7³¬
Éß:- Îé:-
´Ö¼è
-Ëü±ß / 1K
¶¦:- Àì:30.09㎡¡Ã9³¬
Éß:- Îé:-
´Ö¼è
9.7Ëü±ß / 1DK
¶¦:9,950±ß Àì:30.09㎡¡Ã6³¬
Éß:̵ÎÁ Îé:120,000±ß
´Ö¼è
-Ëü±ß / 1DK
¶¦:- Àì:30.09㎡¡Ã13³¬
Éß:- Îé:-
´Ö¼è
-Ëü±ß / 1K
¶¦:- Àì:30.09㎡¡Ã5³¬
Éß:- Îé:-
´Ö¼è
-Ëü±ß / 1K
¶¦:- Àì:30.09㎡¡Ã13³¬
Éß:- Îé:-
´Ö¼è
-Ëü±ß / 1K
¶¦:- Àì:30.09㎡¡Ã2³¬
Éß:- Îé:-
´Ö¼è
-Ëü±ß / 1K
¶¦:- Àì:30.09㎡¡Ã2³¬
Éß:- Îé:-
´Ö¼è
-Ëü±ß / 1K
¶¦:- Àì:30.09㎡¡Ã2³¬
Éß:- Îé:-
´Ö¼è
-Ëü±ß / 1K
¶¦:- Àì:30.09㎡¡Ã4³¬
Éß:- Îé:-
´Ö¼è
-Ëü±ß / 1K
¶¦:- Àì:30.09㎡¡Ã8³¬
Éß:- Îé:-
´Ö¼è
-Ëü±ß / 1K
¶¦:- Àì:21.66㎡¡Ã12³¬
Éß:- Îé:-
´Ö¼è
-Ëü±ß / 1K
¶¦:- Àì:21.66㎡¡Ã13³¬
Éß:- Îé:-
´Ö¼è
-Ëü±ß / 1K
¶¦:- Àì:21.66㎡¡Ã14³¬
Éß:- Îé:-
´Ö¼è
-Ëü±ß / 1K
¶¦:- Àì:21.66㎡¡Ã13³¬
Éß:- Îé:-
´Ö¼è
-Ëü±ß / 1K
¶¦:- Àì:21.66㎡¡Ã12³¬
Éß:- Îé:-
´Ö¼è
-Ëü±ß / 1K
¶¦:- Àì:21.66㎡¡Ã7³¬
Éß:- Îé:-
´Ö¼è
-Ëü±ß / 1DK
¶¦:- Àì:30.09㎡¡Ã2³¬
Éß:- Îé:-
´Ö¼è
-Ëü±ß / 1K
¶¦:- Àì:30.09㎡¡Ã14³¬
Éß:- Îé:-
´Ö¼è
-Ëü±ß / 1K
¶¦:- Àì:22.42㎡¡Ã11³¬
Éß:- Îé:-
´Ö¼è
-Ëü±ß / 1K
¶¦:- Àì:22.42㎡¡Ã10³¬
Éß:- Îé:-
´Ö¼è
-Ëü±ß / 1K
¶¦:- Àì:30.09㎡¡Ã9³¬
Éß:- Îé:-

¥À¥ô¥£¥ó¥Á(°¤ÇȺ¤ÎÄÂÂߥޥ󥷥ç¥ó)

Âçºå¤ÎÄÂÂߡ֡׳°´Ñ
Âçºå»ÔÀ¾¶èΩÇäËÙ
Osaka MetroÃæ±ûÀþ
¡Ö°¤ÇȺ±ء×ÅÌÊâ8ʬ
2018/07 ÃÛ7ǯ / 10³¬·ú
´Ö¼è
-Ëü±ß / 1DK
¶¦:- Àì:29.11㎡¡Ã4³¬
Éß:- Îé:-
´Ö¼è
-Ëü±ß / 1DK
¶¦:- Àì:29.84㎡¡Ã4³¬
Éß:- Îé:-
´Ö¼è
-Ëü±ß / 1DK
¶¦:- Àì:29.84㎡¡Ã3³¬
Éß:- Îé:-
´Ö¼è
-Ëü±ß / 1DK
¶¦:- Àì:29.11㎡¡Ã10³¬
Éß:- Îé:-
´Ö¼è
-Ëü±ß / 1DK
¶¦:- Àì:29.11㎡¡Ã10³¬
Éß:- Îé:-
´Ö¼è
-Ëü±ß / 1DK
¶¦:- Àì:29.84㎡¡Ã9³¬
Éß:- Îé:-
´Ö¼è
-Ëü±ß / 1DK
¶¦:- Àì:29.11㎡¡Ã9³¬
Éß:- Îé:-
´Ö¼è
-Ëü±ß / 1DK
¶¦:- Àì:29.4㎡¡Ã6³¬
Éß:- Îé:-
´Ö¼è
-Ëü±ß / 1DK
¶¦:- Àì:29.84㎡¡Ã10³¬
Éß:- Îé:-
´Ö¼è
-Ëü±ß / 1DK
¶¦:- Àì:29.11㎡¡Ã6³¬
Éß:- Îé:-
´Ö¼è
-Ëü±ß / 1DK
¶¦:- Àì:29.11㎡¡Ã4³¬
Éß:- Îé:-
´Ö¼è
-Ëü±ß / 1DK
¶¦:- Àì:29.4㎡¡Ã10³¬
Éß:- Îé:-
´Ö¼è
-Ëü±ß / 1DK
¶¦:- Àì:29.4㎡¡Ã4³¬
Éß:- Îé:-

¥¨¥¤¥Ú¥Ã¥¯¥¹µþÄ®ËÙ­¶(ÃæÇ·Åç¤ÎÄÂÂߥޥ󥷥ç¥ó)

Âçºå¤ÎÄÂÂߡ֡׳°´Ñ
Âçºå»ÔÀ¾¶èµþÄ®ËÙ
µþºåÃæÇ·ÅçÀþ
¡ÖÃæÇ·Åç±Ø¡×ÅÌÊâ7ʬ
2007/01 ÃÛ19ǯ / 10³¬·ú
´Ö¼è
-Ëü±ß / 1K
¶¦:- Àì:24.34㎡¡Ã5³¬
Éß:- Îé:-
´Ö¼è
-Ëü±ß / 1K
¶¦:- Àì:21.89㎡¡Ã6³¬
Éß:- Îé:-
´Ö¼è
-Ëü±ß / 1K
¶¦:- Àì:24.34㎡¡Ã9³¬
Éß:- Îé:-
´Ö¼è
-Ëü±ß / 1K
¶¦:- Àì:23.78㎡¡Ã4³¬
Éß:- Îé:-
´Ö¼è
-Ëü±ß / 1K
¶¦:- Àì:22.25㎡¡Ã10³¬
Éß:- Îé:-
´Ö¼è
-Ëü±ß / 1K
¶¦:- Àì:23.78㎡¡Ã5³¬
Éß:- Îé:-
´Ö¼è
-Ëü±ß / 1K
¶¦:- Àì:22.25㎡¡Ã3³¬
Éß:- Îé:-
´Ö¼è
-Ëü±ß / 1K
¶¦:- Àì:24.34㎡¡Ã2³¬
Éß:- Îé:-
´Ö¼è
-Ëü±ß / 1K
¶¦:- Àì:24.34㎡¡Ã3³¬
Éß:- Îé:-
´Ö¼è
-Ëü±ß / 1K
¶¦:- Àì:24.34㎡¡Ã4³¬
Éß:- Îé:-
´Ö¼è
-Ëü±ß / 1K
¶¦:- Àì:22.25㎡¡Ã7³¬
Éß:- Îé:-

¥¯¥ì¥¹¥È¥³¡¼¥È¿Ù¸ø±à THE CLASS (°¤ÇȺ¤ÎÄÂÂߥޥ󥷥ç¥ó)

Âçºå¤ÎÄÂÂߡ֡׳°´Ñ
Âçºå»ÔÀ¾¶èÀ¾ËÜÄ®
Osaka MetroÃæ±ûÀþ
¡Ö°¤ÇȺ±ء×ÅÌÊâ5ʬ
2023/04 ÃÛ3ǯ / 14³¬·ú
´Ö¼è
-Ëü±ß / 1LDK
¶¦:- Àì:34.16㎡¡Ã5³¬
Éß:- Îé:-
´Ö¼è
-Ëü±ß / 1K
¶¦:- Àì:21.67㎡¡Ã3³¬
Éß:- Îé:-
´Ö¼è
-Ëü±ß / 1K
¶¦:- Àì:22.04㎡¡Ã11³¬
Éß:- Îé:-
´Ö¼è
-Ëü±ß / 1K
¶¦:- Àì:22.04㎡¡Ã13³¬
Éß:- Îé:-
´Ö¼è
-Ëü±ß / 1K
¶¦:- Àì:21.67㎡¡Ã5³¬
Éß:- Îé:-
´Ö¼è
-Ëü±ß / 1K
¶¦:- Àì:22.22㎡¡Ã6³¬
Éß:- Îé:-
´Ö¼è
-Ëü±ß / 1LDK
¶¦:- Àì:34.66㎡¡Ã14³¬
Éß:- Îé:-
´Ö¼è
-Ëü±ß / 1LDK
¶¦:- Àì:34.16㎡¡Ã3³¬
Éß:- Îé:-
´Ö¼è
-Ëü±ß / 1LDK
¶¦:- Àì:34.16㎡¡Ã10³¬
Éß:- Îé:-
´Ö¼è
-Ëü±ß / 1K
¶¦:- Àì:22.9㎡¡Ã3³¬
Éß:- Îé:-
´Ö¼è
-Ëü±ß / 1K
¶¦:- Àì:21.06㎡¡Ã13³¬
Éß:- Îé:-
´Ö¼è
-Ëü±ß / 1R
¶¦:- Àì:22.56㎡¡Ã10³¬
Éß:- Îé:-
´Ö¼è
-Ëü±ß / 1K
¶¦:- Àì:22.9㎡¡Ã9³¬
Éß:- Îé:-
´Ö¼è
-Ëü±ß / 1K
¶¦:- Àì:22.22㎡¡Ã4³¬
Éß:- Îé:-
´Ö¼è
-Ëü±ß / 1K
¶¦:- Àì:21.06㎡¡Ã5³¬
Éß:- Îé:-
´Ö¼è
-Ëü±ß / 1K
¶¦:- Àì:20.73㎡¡Ã3³¬
Éß:- Îé:-
´Ö¼è
-Ëü±ß / 1LDK
¶¦:- Àì:34.16㎡¡Ã3³¬
Éß:- Îé:-
´Ö¼è
-Ëü±ß / 1K
¶¦:- Àì:22.22㎡¡Ã13³¬
Éß:- Îé:-
´Ö¼è
-Ëü±ß / 1R
¶¦:- Àì:22.56㎡¡Ã3³¬
Éß:- Îé:-
Copyright 2025 ¥¨¥¤¥Ö¥ëNW Âçºå BRUNO All Rights Reserved.

ÅÅÏäǤΤªÌ䤤¹ç¤ï¤»

LINE¤Ç¤ªÌ䤤¹ç¤ï¤»

ʪ·ï°ÍÍê¥ê¥¯¥¨¥¹¥È

ÍèŹͽÌó