- 所在地
- 大阪市西区京町堀1-10-21

- アクセス
- 地下鉄四ツ橋線 肥後橋駅7番出口より南西へ徒歩3分
物件画像
物件情報は代表的なお部屋を掲載しております。
建物内の別の間取りでも空室がある場合がございます。
ご指名物件の空室待ちなども受付けておりますので、お電話かメールにてスタッフまでお申付下さい。
※写真や図と現況が異なる場合は現況を優先させていただきます。
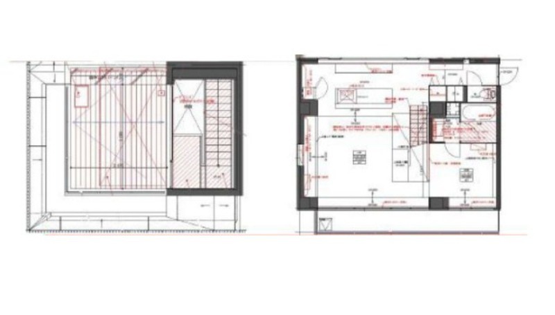
| 賃料 - | 間取り 1LDK |
|---|---|
| 共益費:- | 専有面積:70.3㎡ 間取り詳細:LDK 49帖,洋室 10帖 |
| 所在地 | 中央区南船場 googleマップでみる |
|---|---|
| 交通 | Osaka Metro長堀鶴見緑地線「心斎橋駅」徒歩7分 Osaka Metro四つ橋線「四ツ橋駅」徒歩7分 Osaka Metro御堂筋線「本町駅」徒歩7分 |
| 特記事項 | 大阪市中央区南船場のマンション。防犯カメラ設置済み、オートロック付き。お気軽にお問い合わせください。 |
| 成約状況 |
| 近隣情報 | 銀行:三井住友銀行 ATM 四ツ橋駅北出張所160m 郵便局:大阪新町郵便局173m コンビニ:ファミリーマート 四ツ橋北店202m ドラッグストア:スギ薬局四ツ橋店292m スーパー:イオンフードスタイル四ツ橋店442m 病院:うえだ小児科449m |
|---|

二人入居可、システムキッチン、給湯、角部屋、温水洗浄便座、デザイナーズ、洗面所独立、防犯カメラ、クローゼット、シューズボックス、保証人要、水道(公営)、ガス(都市)、排水(下水)、バス・トイレ別、シャワー、コンロ(二口)、エアコン、室内洗濯機置き場、オートロック、エレベータ有、バルコニー、フローリング、TVドアホン、最上階、リノベーション
−
※電話でお問い合わせの際は、サイト名と物件番号をお伝え下さい。
最新の空室確認、内覧希望、詳しい情報を知りたい、似た物件を探したい、などお気軽にお問い合わせ下さい。