- 所在地
- 大阪市西区京町堀1-10-21

- アクセス
- 地下鉄四ツ橋線 肥後橋駅7番出口より南西へ徒歩3分
物件画像
物件情報は代表的なお部屋を掲載しております。
建物内の別の間取りでも空室がある場合がございます。
ご指名物件の空室待ちなども受付けておりますので、お電話かメールにてスタッフまでお申付下さい。
※写真や図と現況が異なる場合は現況を優先させていただきます。
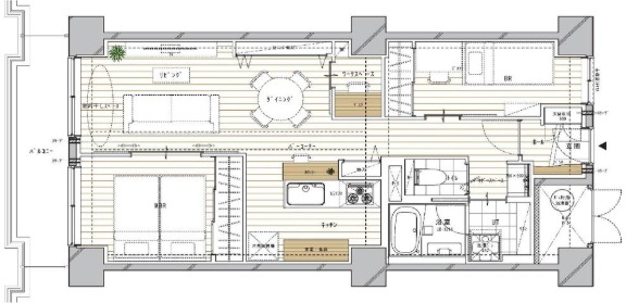
| 賃料 - | 間取り 2SLDK |
|---|---|
| 共益費:- | 専有面積:61.02㎡ 間取り詳細:− |
| 所在地 | 西区江之子島 googleマップでみる |
|---|---|
| 交通 | Osaka Metro中央線「阿波座駅」徒歩5分 Osaka Metro千日前線「阿波座駅」徒歩5分 京阪中之島線「中之島駅」徒歩9分 |
| 特記事項 | 阿波座令和4年リノベーション分譲賃貸、ペット可、書斎、南向きリビング |
| 成約状況 |
| 近隣情報 | コンビニ:セブンイレブン大阪江戸堀3丁目店69m 飲食店:ほっかほっか亭江戸堀店355m スーパー:ライフビオラル靭店471m ドラッグストア:ドラッグアカカベ阿波座店646m ショッピングセンター:フレスポ阿波座716m 公園:靱公園768m |
|---|

二人入居可、分譲賃貸、システムキッチン、追焚機能、シャワー付洗面化粧台、駐輪場あり、温水洗浄便座、カウンターキッチン、食器洗い乾燥機、防犯カメラ、シューズボックス、照明器具付き、ペット対応、バス専用、バス・トイレ別、シャワー、ガスコンロ、コンロ(三口)、エアコン、オートロック、バルコニー、フローリング、TVドアホン、ごみ出し24時間OK、敷金なし、リノベーション
阿波座令和4年リノベーション分譲賃貸、ペット可、書斎、南向きリビング
※電話でお問い合わせの際は、サイト名と物件番号をお伝え下さい。
最新の空室確認、内覧希望、詳しい情報を知りたい、似た物件を探したい、などお気軽にお問い合わせ下さい。