³°´Ñ
Âçºå Âçºå»ÔÀ¾¶è Ãæ¸Å¥Þ¥ó¥·¥ç¥ó¾ÜºÙ






















| À®Ìó¾õ¶· | |
|---|---|
| ²Á¡¡³Ê | - |
| ´ÉÍýÈñ(·î³Û)¡§- | |
| ½¤Á¶ÀÑΩ¶â¡§-¡Ã¼ÚÃÏÎÁ¡§- | |
| ¤½¤Î¾ÈñÍÑ¡§- | |
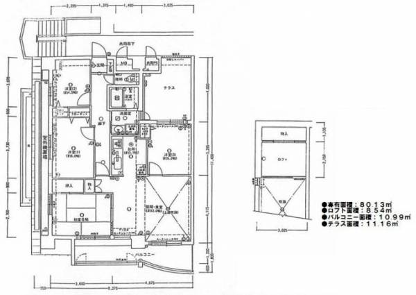
| ´Ö¼è¤ê | 4LDK¡¡ÀìÍÌÌÀÑ¡§88.67m2¡¡26.82ÄÚ |
| ¶¦ÍÌÌÀÑ¡§-¡Ê-¡Ë | |
| ¥Ð¥ë¥³¥Ë¡¼ÌÌÀÑ¡§10.99m2¡Ê-¡Ë |
| ½êºß³¬¿ô | 14³¬ | Êý³Ñ | ÅìÆî³ÑÉô²° |
|---|---|---|---|
| È÷¹Í | - | ||
| ½êºßÃÏ | ÂçºåÉÜÂçºå»ÔÀ¾¶èÆîËÙ¹¾2ÃúÌÜ google¥Þ¥Ã¥×¤Ç¤ß¤ë |
|---|---|
| ¸òÄÌ | Âçºå¥á¥È¥íĹËÙÄḫÎÐÃÏÀþ ¡ÖÀ¾Âç¶¶¡×±Ø ÅÌÊâ 5ʬ Âçºå¥á¥È¥í»Í¤Ä¶¶Àþ ¡Ö»Í¥Ä¶¶¡×±Ø ÅÌÊâ7ʬ Âçºå¥á¥È¥í¸æÆ²¶ÚÀþ ¡Ö¿´ºØ¶¶¡×±Ø ÅÌÊâ11ʬ |
| ʪ·ï¹½Â¤ | Å´¹üÅ´¶Ú¥³¥ó¥¯¥ê¡¼¥È | ʪ·ï³¬ÁØ | ÃϾå14³¬·ú | ʪ·ï¼ïÊÌ | ¥Þ¥ó¥·¥ç¥ó |
|---|---|---|---|---|---|
| ´°À®Ç¯·î | 1998ǯ3·î | Áí¸Í¿ô | 51¸Í | ·úÃÛ¾ò·ï | - |
| ·úʪÌÌÀÑ | -¡Ê-¡Ë | ÅÚÃÏÌÌÀÑ | -¡Ê-¡Ë | ¤½¤Î¾ÌÌÀÑ | ÀìÍÌÌÀѤˤϥí¥Õ¥ÈÉôʬ8.54Ö´Þ¤à |
| ·ò¤Ú¤¤Î¨ | - | ÍÆÀÑΨ | - | ÍÑÅÓÃϰè | ¾¦¶ÈÃϰè |
| Ãó¼Ö¾ì | - ¡¡ÎÁ¶â¡§26,000¡Á29,000±ß | ||||
| ʪ·ïÀßÈ÷ | ¥¨¥ì¥Ù¡¼¥¿¡¼ËÉÈÈ¥«¥á¥é¥ª¡¼¥È¥í¥Ã¥¯ÃóÎØ¾ìÅÅÏÃÇÛÀþ¼ýǼÁ´¼¼¼ýǼ¤¢¤ê¥¯¥í¡¼¥¼¥Ã¥È¥¯¥í¥¼¥Ã¥È£²¤Ä°Ê¾å¥·¥å¡¼¥º¥Ü¥Ã¥¯¥¹¥¥Ã¥Á¥ó¼ýǼ½¼¼ÂTV¥¤¥ó¥¿¡¼¥Û¥ó¥³¥ó¥í£³¸ý°Ê¾åÎ䢸ËÃÖ¤¾ì¥·¥ã¥ó¥×¡¼¥É¥ì¥Ã¥µ¡¼É÷Ϥ¥È¥¤¥ìÊÌÆÈΩÀöÌÌæ°á½ê¥¦¥©¥·¥å¥ì¥Ã¥È¼¼ÆâÀöÂõµ¡ÃÖ¾ì³ÑÉô²°LDK¤¬15Ä¡°Ê¾å | ||||
| ¼þÊմĶ | ¸ø±à¡§ÅÌÊâÌó2ʬ¡¡ Í¹ÊØ¶É¡§ÅÌÊâÌó2ʬ¡¡ ¥¹¡¼¥Ñ¡¼¡§ÅÌÊâÌó3ʬ¡¡ Êݰé±à¡§ÅÌÊâÌó1ʬ¡¡ ÍÄÃձࡧÅÌÊâÌó8ʬ¡¡ ÆüµÈ¾®³Ø¹»¡§ÅÌÊâÌó6ʬ¡¡ ËÙ¹¾Ãæ³Ø¹»¡§ÅÌÊâÌó5ʬ | ||||
| ³Ø¹»¶è¡Ê¾®³Ø¹»¡Ë | ÆüµÈ¾®³Ø¹» | ||||
| ³Ø¹»¶è¡ÊÃæ³Ø¹»¡Ë | ËÙ¹¾Ãæ³Ø¹» | ||||
»÷¤¿¾ò·ï¤Ç¤ªÃµ¤·¤Î¾ì¹ç¡¢Ã´ÅöŹÊޤؤªÅÅÏ䤤¿¤À¤¯¤«¡¢°Ê²¼¤Î¡Ö´õ˾¾ò·ï¥ê¥¯¥¨¥¹¥È¡×¤è¤ê¥á¡¼¥ë¤Ç¥ê¥¯¥¨¥¹¥È失¤Þ¤·¤¿¤é¡¢¾ò·ï¤Ë¹ç¤Ã¤¿Êª·ï¤ò¤´¾Ò²ð¤µ¤»¤ÆÄº¤¤Þ¤¹¡£
¤ªÅÅÏäκݤϡ¢¥µ¥¤¥È̾¤Èµ»öÈÖ¹æ¤ò¤ªÅÁ¤¨¤¤¤¿¤À¤¯¤È¥¹¥à¡¼¥º¤Ç¤¹¡£
| ʪ·ïÈÖ¹æ | BC1-11644 |
|---|---|
| ¥µ¥¤¥È̾ | BRUNOÉÔÆ°»º¡ØºÆÀ¸¡£¡Ù |
06-6459-4555
½êºßÃÏ¡§Âçºå»ÔÀ¾¶èµþÄ®ËÙ1-10-21
¥¢¥¯¥»¥¹¡§Ãϲ¼Å´»Í¥Ä¶¶Àþ Èî¸å¶¶±Ø7Èֽиý¤è¤êÆîÀ¾¤ØÅÌÊâ3ʬ
»÷¤¿Êª·ï¤òõ¤·¤¿¤¤¡¢ºÇ¿·¤Îʪ·ï¾ðÊó¤òÃΤꤿ¤¤¡¢´õ˾¤Îʪ·ï¾ò·ï¤Ç¸«¤Ä¤±¤ÆÍߤ·¤¤¡¢¤Ê¤É¤ªµ¤·Ú¤Ë¤ªÌ䤤¹ç¤ï¤»²¼¤µ¤¤¡£