大阪市中央区 肥後橋駅 詳細























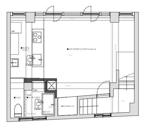
| 所在階数 | 4階 | 方角 | - | 契約期間 | 2年 |
|---|---|---|---|---|---|
| 部屋設備 | 風呂トイレ別最上階南向き | ||||
| 備考 | - | ||||
| 所在地 | 大阪市中央区 平野町4 googleマップでみる |
|---|---|
| 交通 | 大阪メトロ四つ橋線 「肥後橋」駅 徒歩7分 |
| 物件構造 | 鉄骨造 | 物件階層 | 4階建 | 物件種別 | マンション |
|---|---|---|---|---|---|
| 完成年月 | 2015年3月 | 駐輪場 | - | バイク置き場 | - |
| 駐車場 | - | ||||
| 物件設備 | モニター付きオートロックインターネット | ||||
| 周辺環境 | - | ||||
似た条件でお探しの場合、担当店舗へお電話いただくか、以下の「希望条件リクエスト」よりメールでリクエスト頂けましたら、条件に合った物件をご紹介させて頂きます。
お電話の際は、サイト名と記事番号をお伝えいただくとスムーズです。
| 物件番号 | BC1-95977 |
|---|---|
| サイト名 | BRUNO不動産『再生。』 |
似た物件を探したい、最新の物件情報を知りたい、希望の物件条件で見つけて欲しい、などお気軽にお問い合わせ下さい。