TOP
大阪市西区 阿波座駅 詳細























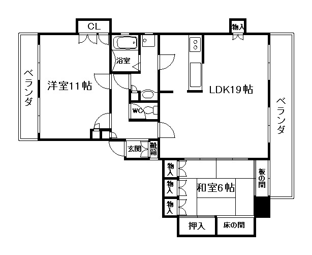
| 所在階数 | 7階 | 方角 | 南向き | 契約期間 | 2年 |
|---|---|---|---|---|---|
| 部屋設備 | リノベーション眺望が良い南向き日当たり良好フローリングバルコニーTVインターホンコンロ設置済ガスコンロコンロ2口カウンター型風呂トイレ別シャワーシャンプードレッサー室内洗濯機置場ウォシュレットクローゼットクロゼット2つ以上シューズボックス二人入居可 | ||||
| 備考 | - | ||||
| 所在地 | 大阪市西区 京町堀2 googleマップでみる |
|---|---|
| 交通 | 大阪メトロ中央線 「阿波座」駅 徒歩11分 大阪メトロ千日前線 「阿波座」駅 徒歩11分 京阪中之島線 「中之島」駅 徒歩14分 |
| 物件構造 | RC造 | 物件階層 | 8階建 | 物件種別 | マンション |
|---|---|---|---|---|---|
| 完成年月 | 1987年3月 | 駐輪場 | - | バイク置き場 | - |
| 駐車場 | 空無 駐車場空き無し | ||||
| 物件設備 | オートロックモニター付きオートロックインターネットエレベーター数:1基防犯カメラ都市ガスエレベーター数:1基 | ||||
| 周辺環境 | ライフ土佐堀店 約542m | ||||
似た条件でお探しの場合、担当店舗へお電話いただくか、以下の「希望条件リクエスト」よりメールでリクエスト頂けましたら、条件に合った物件をご紹介させて頂きます。
お電話の際は、サイト名と記事番号をお伝えいただくとスムーズです。
| 物件番号 | BC1-130345 |
|---|---|
| サイト名 | BRUNO不動産『再生。』 |
似た物件を探したい、最新の物件情報を知りたい、希望の物件条件で見つけて欲しい、などお気軽にお問い合わせ下さい。