³°´Ñ
Âçºå»ÔÍäÀî¶è Åì»°¹ñ±Ø ¾ÜºÙ























| ½êºß³¬¿ô | 1³¬ | Êý³Ñ | Æî¸þ¤ | ·ÀÌó´ü´Ö | 2ǯ |
|---|---|---|---|---|---|
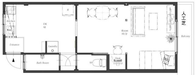
| Éô²°ÀßÈ÷ | ¥Ç¥¶¥¤¥Ê¡¼¥º¥ê¥Î¥Ù¡¼¥·¥ç¥óÆî¸þ¤³ÑÉô²°ÆüÅö¤¿¤êÎɹ¥¥Õ¥í¡¼¥ê¥ó¥°¿å¤Þ¤ï¤ê¿·ÉʾÈÌÀ´ï¶ñ¥Ð¥ë¥³¥Ë¡¼ÆâÁõÁ´¥ê¥Õ¥©¡¼¥àºÑBIG1Room¿²¼¼6Ä¡°Ê¾å¥ª¡¼¥ëÍμ¼¥³¥ó¥íÀßÃֺѥ¬¥¹¥³¥ó¥í¥³¥ó¥í£²¸ýÎ䢸ËÃÖ¤¾ìÄ´Íýºî¶È¥¹¥Ú¡¼¥¹É÷Ϥ¥È¥¤¥ìÊÌ¥·¥ã¥ï¡¼¥¬¥¹µëÅò´ï¼¼ÆâÀöÂõµ¡Ã־쥦¥©¥·¥å¥ì¥Ã¥È¥¦¥©¡¼¥à¥ì¥Ã¥ÈÍμ°¥È¥¤¥ì¥¨¥¢¥³¥ó¥¯¥í¡¼¥¼¥Ã¥ÈÆó¿ÍÆþµï²Ä | ||||
| È÷¹Í | - | ||||
| ½êºßÃÏ | Âçºå»ÔÍäÀî¶è Åì»°¹ñ5 google¥Þ¥Ã¥×¤Ç¤ß¤ë |
|---|---|
| ¸òÄÌ | Âçºå¥á¥È¥í¸æÆ²¶ÚÀþ ¡ÖÅì»°¹ñ¡×±Ø ÅÌÊâ3ʬ JRµþÅÔÀþ ¡ÖÅìÍäÀî¡×±Ø ÅÌÊâ10ʬ JRµþÅÔÀþ ¡Ö¿·Âçºå¡×±Ø ÅÌÊâ14ʬ |
| ʪ·ï¹½Â¤ | Å´¹ü¤ | ʪ·ï³¬ÁØ | 2³¬·ú | ʪ·ï¼ïÊÌ | ¥¢¥Ñ¡¼¥È |
|---|---|---|---|---|---|
| ´°À®Ç¯·î | 1972ǯ5·î | ÃóÎØ¾ì | - | ¥Ð¥¤¥¯ÃÖ¤¾ì | - |
| Ãó¼Ö¾ì | - | ||||
| ʪ·ïÀßÈ÷ | ÅÔ»Ô¥¬¥¹ | ||||
| ¼þÊմĶ | ¥¸¥ã¥Ñ¥óÅì»°¹ñŹ 238m ¥Õ¥¡¥ß¥ê¡¼¥Þ¡¼¥È¡ß¥¤¥º¥ß¥äÅì»°¹ñ»ÍÃúÌÜŹ 300m ¥é¥¤¥Õ¿·ÂçºåŹ 335m ¥À¥¤¥¨¡¼Åì»°¹ñŹ 335m ¶È̳¥¹¡¼¥Ñ¡¼¿·Âçºå»°¹ñŹ 546m ¥µ¥ó¥É¥é¥Ã¥°Åì»°¹ñŹ 358m | ||||
»÷¤¿¾ò·ï¤Ç¤ªÃµ¤·¤Î¾ì¹ç¡¢Ã´ÅöŹÊޤؤªÅÅÏ䤤¿¤À¤¯¤«¡¢°Ê²¼¤Î¡Ö´õ˾¾ò·ï¥ê¥¯¥¨¥¹¥È¡×¤è¤ê¥á¡¼¥ë¤Ç¥ê¥¯¥¨¥¹¥È失¤Þ¤·¤¿¤é¡¢¾ò·ï¤Ë¹ç¤Ã¤¿Êª·ï¤ò¤´¾Ò²ð¤µ¤»¤ÆÄº¤¤Þ¤¹¡£
¤ªÅÅÏäκݤϡ¢¥µ¥¤¥È̾¤Èµ»öÈÖ¹æ¤ò¤ªÅÁ¤¨¤¤¤¿¤À¤¯¤È¥¹¥à¡¼¥º¤Ç¤¹¡£
| ʪ·ïÈÖ¹æ | BC1-128343 |
|---|---|
| ¥µ¥¤¥È̾ | BRUNOÉÔÆ°»º¡ØºÆÀ¸¡£¡Ù |
06-6459-4555
½êºßÃÏ¡§Âçºå»ÔÀ¾¶èµþÄ®ËÙ1-10-21
¥¢¥¯¥»¥¹¡§Ãϲ¼Å´»Í¥Ä¶¶Àþ Èî¸å¶¶±Ø7Èֽиý¤è¤êÆîÀ¾¤ØÅÌÊâ3ʬ
»÷¤¿Êª·ï¤òõ¤·¤¿¤¤¡¢ºÇ¿·¤Îʪ·ï¾ðÊó¤òÃΤꤿ¤¤¡¢´õ˾¤Îʪ·ï¾ò·ï¤Ç¸«¤Ä¤±¤ÆÍߤ·¤¤¡¢¤Ê¤É¤ªµ¤·Ú¤Ë¤ªÌ䤤¹ç¤ï¤»²¼¤µ¤¤¡£