外観
豊中市 少路駅 詳細























| 所在階数 | 1階 | 方角 | 南向き | 契約期間 | 2年 |
|---|---|---|---|---|---|
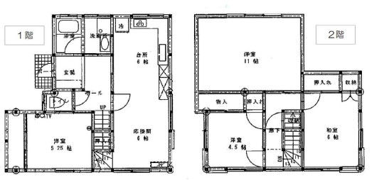
| 部屋設備 | リノベーション南向き設備充実日当たり良好フローリングバリアフリー照明器具バルコニー専用庭TVインターホンLDK10帖以上寝室6帖以上和室有りコンロ設置済ガスコンロコンロ3口以上システムキッチンL字型キッチン収納充実冷蔵庫置き場調理作業スペース水回りに窓がある風呂トイレ別シャワー浴室乾燥暖房機能洗い場が広いガス給湯器追い炊き機能シャンプードレッサー室内洗濯機置場ウォシュレットウォームレット洋式トイレクローゼットクロゼット2つ以上物置(トランクルーム)シューズボックス食器棚(カップボード)収納充実 | ||||
| 備考 | - | ||||
| 所在地 | 豊中市 東豊中町6 googleマップでみる |
|---|---|
| 交通 | 大阪モノレール本線 「少路」駅 徒歩12分 大阪モノレール本線 「千里中央」駅 徒歩17分 北大阪急行線 「桃山台」駅 徒歩17分 |
| 物件構造 | 木造 | 物件階層 | 1階建 | 物件種別 | 貸家 |
|---|---|---|---|---|---|
| 完成年月 | 1969年12月 | 駐輪場 | - | バイク置き場 | - |
| 駐車場 | 有 円 | ||||
| 物件設備 | 都市ガス | ||||
| 周辺環境 | やまや豊中少路店 991m ジャパン豊中熊野店 1222m スーパーマルヤス東豊中店 223m コープ東豊中 323m セブンイレブン東豊中4丁目店 464m スーパードラッグシグマ東豊中店 689m | ||||
似た条件でお探しの場合、担当店舗へお電話いただくか、以下の「希望条件リクエスト」よりメールでリクエスト頂けましたら、条件に合った物件をご紹介させて頂きます。
お電話の際は、サイト名と記事番号をお伝えいただくとスムーズです。
| 物件番号 | BC1-127614 |
|---|---|
| サイト名 | BRUNO不動産『再生。』 |
似た物件を探したい、最新の物件情報を知りたい、希望の物件条件で見つけて欲しい、などお気軽にお問い合わせ下さい。