外観
大阪市北区 中崎町駅 詳細























| 所在階数 | 8階 | 方角 | 東向き | 契約期間 | 2年 |
|---|---|---|---|---|---|
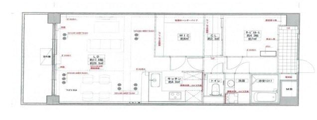
| 部屋設備 | デザイナーズリノベーション設備充実フローリングフラットフロア水まわり新品照明器具バルコニーTVインターホンLDK20帖以上オール洋室コンロ設置済ガスコンロコンロ3口以上システムキッチンカウンター型L字型キッチン収納充実冷蔵庫置き場調理作業スペース風呂トイレ別シャワーガス給湯器追い炊き機能独立洗面脱衣所室内洗濯機置場ウォシュレットウォームレット洋式トイレエアコンクローゼットウォークインクローゼットシューズボックス収納充実二人入居可 | ||||
| 備考 | - | ||||
| 所在地 | 大阪市北区 鶴野町 googleマップでみる |
|---|---|
| 交通 | 大阪メトロ谷町線 「中崎町」駅 徒歩5分 阪急京都線 「梅田」駅 徒歩6分 阪急神戸線 「梅田」駅 徒歩6分 |
| 物件構造 | SRC造 | 物件階層 | 14階建 | 物件種別 | マンション |
|---|---|---|---|---|---|
| 完成年月 | 1981年2月 | 駐輪場 | - | バイク置き場 | - |
| 駐車場 | - | ||||
| 物件設備 | 防犯カメラ都市ガスエレベーター数:2基 その他共用施設(集合ポスト)エレベーター数:2基 | ||||
| 周辺環境 | セブンイレブン大阪中崎西店 355m ナベル本庄 376m 梅田ロフト 132m | ||||
似た条件でお探しの場合、担当店舗へお電話いただくか、以下の「希望条件リクエスト」よりメールでリクエスト頂けましたら、条件に合った物件をご紹介させて頂きます。
お電話の際は、サイト名と記事番号をお伝えいただくとスムーズです。
| 物件番号 | BC1-127371 |
|---|---|
| サイト名 | BRUNO不動産『再生。』 |
似た物件を探したい、最新の物件情報を知りたい、希望の物件条件で見つけて欲しい、などお気軽にお問い合わせ下さい。