³°´Ñ
Âçºå»ÔÊ¡Åç¶è ÍäÀî±Ø ¾ÜºÙ























| ½êºß³¬¿ô | 2³¬ | Êý³Ñ | Æî¸þ¤ | ·ÀÌó´ü´Ö | 2ǯ |
|---|---|---|---|---|---|
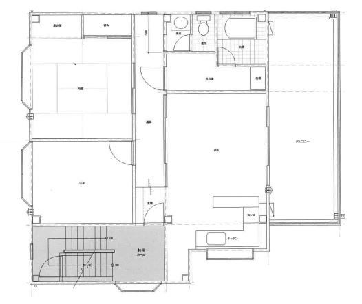
| Éô²°ÀßÈ÷ | ¥ê¥Î¥Ù¡¼¥·¥ç¥óÆî¸þ¤ÀßÈ÷½¼¼ÂÆüÅö¤¿¤êÎɹ¥¥ë¡¼¥à¥·¥§¥¢¸þ¤±´Ö¼è¤ê¥Õ¥í¡¼¥ê¥ó¥°¥Õ¥é¥Ã¥È¥Õ¥í¥¢¾ÈÌÀ´ï¶ñ¥Ð¥ë¥³¥Ë¡¼TV¥¤¥ó¥¿¡¼¥Û¥óLDK10Ä¡°Ê¾å¿²¼¼6Ä¡°Ê¾åϼ¼Í¤ê¥³¥ó¥íÀßÃֺѥ¬¥¹¥³¥ó¥í¥³¥ó¥í£³¸ý°Ê¾å¥«¥¦¥ó¥¿¡¼·¿Î䢸ËÃÖ¤¾ìÄ´Íýºî¶È¥¹¥Ú¡¼¥¹É÷Ϥ¥È¥¤¥ìÊÌ¥·¥ã¥ï¡¼Àö¤¤¾ì¤¬¹¤¤¥¬¥¹µëÅò´ï¼¼ÆâÀöÂõµ¡Ã־쥦¥©¥·¥å¥ì¥Ã¥ÈÍμ°¥È¥¤¥ìÆó¿ÍÆþµï²Ä | ||||
| È÷¹Í | - | ||||
| ½êºßÃÏ | Âçºå»ÔÊ¡Åç¶è Â糫3 google¥Þ¥Ã¥×¤Ç¤ß¤ë |
|---|---|
| ¸òÄÌ | ºå¿ÀËÜÀþ ¡ÖÍäÀî¡×±Ø ÅÌÊâ5ʬ JRÅìÀ¾Àþ ¡Ö³¤Ï·¹¾¡×±Ø ÅÌÊâ8ʬ ºå¿ÀËÜÀþ ¡ÖÌîÅÄ¡×±Ø ÅÌÊâ11ʬ |
| ʪ·ï¹½Â¤ | ½ÅÎÌÅ´¹ü | ʪ·ï³¬ÁØ | 3³¬·ú | ʪ·ï¼ïÊÌ | ¥Æ¥é¥¹¥Ï¥¦¥¹ |
|---|---|---|---|---|---|
| ´°À®Ç¯·î | 1991ǯ1·î | ÃóÎØ¾ì | 0±ß¡Á | ¥Ð¥¤¥¯ÃÖ¤¾ì | - |
| Ãó¼Ö¾ì | Í 10000±ß Éß¶â:0±ß | ||||
| ʪ·ïÀßÈ÷ | ¥ª¡¼¥È¥í¥Ã¥¯¥â¥Ë¥¿¡¼ÉÕ¤¥ª¡¼¥È¥í¥Ã¥¯¥¤¥ó¥¿¡¼¥Í¥Ã¥È̵ÎÁÅÔ»Ô¥¬¥¹ | ||||
| ¼þÊմĶ | ¥é¥¤¥ÕÌîÅÄŹ 457m ¥í¡¼¥½¥óÂ糫»°ÃúÌÜŹ 253m ¥³¡¼¥Ê¥óÊ¡ÅçÂ糫Ź 217m | ||||
»÷¤¿¾ò·ï¤Ç¤ªÃµ¤·¤Î¾ì¹ç¡¢Ã´ÅöŹÊޤؤªÅÅÏ䤤¿¤À¤¯¤«¡¢°Ê²¼¤Î¡Ö´õ˾¾ò·ï¥ê¥¯¥¨¥¹¥È¡×¤è¤ê¥á¡¼¥ë¤Ç¥ê¥¯¥¨¥¹¥È失¤Þ¤·¤¿¤é¡¢¾ò·ï¤Ë¹ç¤Ã¤¿Êª·ï¤ò¤´¾Ò²ð¤µ¤»¤ÆÄº¤¤Þ¤¹¡£
¤ªÅÅÏäκݤϡ¢¥µ¥¤¥È̾¤Èµ»öÈÖ¹æ¤ò¤ªÅÁ¤¨¤¤¤¿¤À¤¯¤È¥¹¥à¡¼¥º¤Ç¤¹¡£
| ʪ·ïÈÖ¹æ | BC1-127064 |
|---|---|
| ¥µ¥¤¥È̾ | BRUNOÉÔÆ°»º¡ØºÆÀ¸¡£¡Ù |
06-6459-4555
½êºßÃÏ¡§Âçºå»ÔÀ¾¶èµþÄ®ËÙ1-10-21
¥¢¥¯¥»¥¹¡§Ãϲ¼Å´»Í¥Ä¶¶Àþ Èî¸å¶¶±Ø7Èֽиý¤è¤êÆîÀ¾¤ØÅÌÊâ3ʬ
»÷¤¿Êª·ï¤òõ¤·¤¿¤¤¡¢ºÇ¿·¤Îʪ·ï¾ðÊó¤òÃΤꤿ¤¤¡¢´õ˾¤Îʪ·ï¾ò·ï¤Ç¸«¤Ä¤±¤ÆÍߤ·¤¤¡¢¤Ê¤É¤ªµ¤·Ú¤Ë¤ªÌ䤤¹ç¤ï¤»²¼¤µ¤¤¡£