デザイナーズ
大阪市西成区 北加賀屋駅 詳細























| 所在階数 | 2階 | 方角 | 南向き | 契約期間 | 2年 |
|---|---|---|---|---|---|
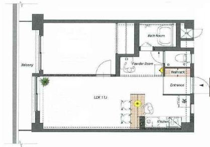
| 部屋設備 | デザイナーズリノベーション南向き日当たり良好フローリング水まわり新品バルコニーTVインターホン内装全リフォーム済コンクリート打ちっぱなしコンロ設置済ガスコンロコンロ3口以上システムキッチン調理作業スペース水回りに窓がある風呂トイレ別シャワー室内洗濯機置場シューズボックス収納充実 | ||||
| 備考 | - | ||||
| 所在地 | 大阪市西成区 南津守7 googleマップでみる |
|---|---|
| 交通 | 大阪メトロ四つ橋線 「北加賀屋」駅 徒歩4分 大阪メトロ四つ橋線 「玉出」駅 徒歩7分 |
| 物件構造 | RC造 | 物件階層 | 5階建 | 物件種別 | マンション |
|---|---|---|---|---|---|
| 完成年月 | 1976年11月 | 駐輪場 | 0円〜 | バイク置き場 | 3,000円〜 |
| 駐車場 | 有 10000円 敷金:0円 | ||||
| 物件設備 | 都市ガス | ||||
| 周辺環境 | - | ||||
似た条件でお探しの場合、担当店舗へお電話いただくか、以下の「希望条件リクエスト」よりメールでリクエスト頂けましたら、条件に合った物件をご紹介させて頂きます。
お電話の際は、サイト名と記事番号をお伝えいただくとスムーズです。
| 物件番号 | BC1-126136 |
|---|---|
| サイト名 | BRUNO不動産『再生。』 |
似た物件を探したい、最新の物件情報を知りたい、希望の物件条件で見つけて欲しい、などお気軽にお問い合わせ下さい。