-
大阪市都島区 都島駅 詳細























| 所在階数 | 3階 | 方角 | 北東向き | 契約期間 | 2年 |
|---|---|---|---|---|---|
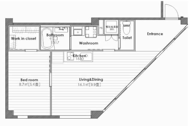
| 部屋設備 | デザイナーズリノベーション視界が開けている(障害物なし)角部屋設備充実フローリング水まわり新品照明器具TVインターホンオール洋室コンロ設置済IHコンロコンロ2口システムキッチン冷蔵庫置き場調理作業スペース風呂トイレ別ユニットバスシャワー浴室TV浴室乾燥暖房機能電気給湯器洗面化粧台独立洗面脱衣所室内洗濯機置場エアコンクローゼットウォークインクローゼット納戸付き | ||||
| 備考 | - | ||||
| 所在地 | 大阪市都島区 毛馬町1 googleマップでみる |
|---|---|
| 交通 | 大阪メトロ谷町線 「都島」駅 徒歩18分 大阪メトロ谷町線 「天神橋筋六丁目」駅 徒歩19分 |
| 物件構造 | 鉄骨造 | 物件階層 | 4階建 | 物件種別 | マンション |
|---|---|---|---|---|---|
| 完成年月 | 2001年5月 | 駐輪場 | - | バイク置き場 | - |
| 駐車場 | 無 駐車場無し | ||||
| 物件設備 | モニター付きオートロックインターネットインターネット無料宅配ボックス防犯カメラ管理人常駐オール電化エレベーター数:1基エレベーター数:1基 | ||||
| 周辺環境 | - | ||||
似た条件でお探しの場合、担当店舗へお電話いただくか、以下の「希望条件リクエスト」よりメールでリクエスト頂けましたら、条件に合った物件をご紹介させて頂きます。
お電話の際は、サイト名と記事番号をお伝えいただくとスムーズです。
| 物件番号 | BC1-125780 |
|---|---|
| サイト名 | BRUNO不動産『再生。』 |
似た物件を探したい、最新の物件情報を知りたい、希望の物件条件で見つけて欲しい、などお気軽にお問い合わせ下さい。