-
大阪市西区 阿波座駅 詳細























| 所在階数 | 7階 | 方角 | 南向き | 契約期間 | 2年 |
|---|---|---|---|---|---|
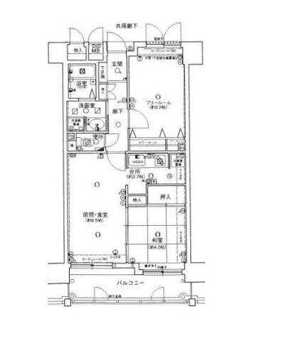
| 部屋設備 | 南向きフローリングバルコニーTVインターホン部分リフォーム済和室有りコンロ設置済ガスコンロコンロ2口システムキッチン冷蔵庫置き場調理作業スペース風呂トイレ別シャワー浴室乾燥暖房機能独立洗面脱衣所室内洗濯機置場ウォシュレットエアコンクローゼット天袋付き押入れクロゼット2つ以上物置(トランクルーム)シューズボックス食器棚(カップボード)収納充実二人入居可 | ||||
| 備考 | - | ||||
| 所在地 | 大阪市西区 西本町2 googleマップでみる |
|---|---|
| 交通 | 大阪メトロ中央線 「阿波座」駅 バス2分 大阪メトロ千日前線 「阿波座」駅 徒歩2分 大阪メトロ長堀鶴見緑地線 「西長堀」駅 徒歩5分 |
| 物件構造 | SRC造 | 物件階層 | 11階建 | 物件種別 | 分譲賃貸マンション |
|---|---|---|---|---|---|
| 完成年月 | 1998年12月 | 駐輪場 | 400円〜 | バイク置き場 | 800円〜 |
| 駐車場 | 空無 駐車場空き無し | ||||
| 物件設備 | オートロックモニター付きオートロック宅配ボックス防犯カメラ管理人常駐エレベータカメラエレベーター数:1基エレベーター数:1基 | ||||
| 周辺環境 | ライフ 靱店 約270m、ライフ阿波座駅前店 約287m、永田医院 約590m、なにわ病院 約1628m、大阪市立中央図書館 約1119m、靱公園 約397m、堀江公園 約1552m、なにわ天然温泉 花乃井 約745m | ||||
似た条件でお探しの場合、担当店舗へお電話いただくか、以下の「希望条件リクエスト」よりメールでリクエスト頂けましたら、条件に合った物件をご紹介させて頂きます。
お電話の際は、サイト名と記事番号をお伝えいただくとスムーズです。
| 物件番号 | BC1-125490 |
|---|---|
| サイト名 | BRUNO不動産『再生。』 |
似た物件を探したい、最新の物件情報を知りたい、希望の物件条件で見つけて欲しい、などお気軽にお問い合わせ下さい。