-
大阪市都島区 都島駅 詳細























| 所在階数 | 4階 | 方角 | 西向き | 契約期間 | 2年 |
|---|---|---|---|---|---|
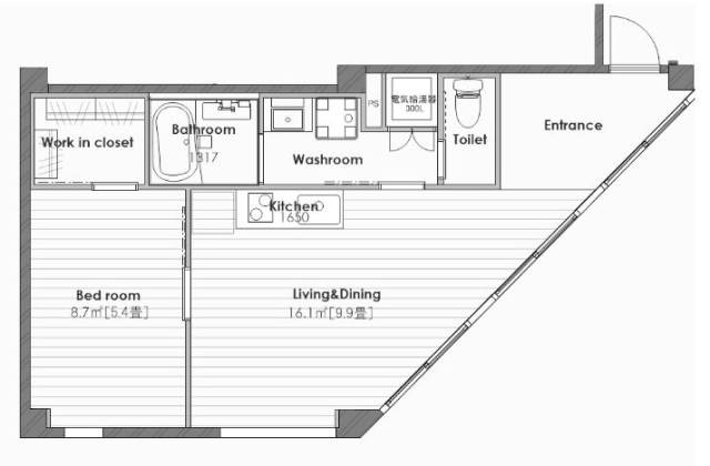
| 部屋設備 | デザイナーズリノベーション眺望が良い視界が開けている(障害物なし)最上階角部屋設備充実日当たり良好フローリング水まわり新品TVインターホン内装全リフォーム済部分リフォーム済オール洋室コンロ設置済IHコンロコンロ2口システムキッチン冷蔵庫置き場調理作業スペース風呂トイレ別シャワー浴室TV浴室乾燥暖房機能室内洗濯機置場エアコンクローゼットウォークインクローゼット納戸付き収納充実 | ||||
| 備考 | - | ||||
| 所在地 | 大阪市都島区 毛馬町1 googleマップでみる |
|---|---|
| 交通 | 大阪メトロ谷町線 「都島」駅 徒歩18分 大阪メトロ谷町線 「天神橋筋六丁目」駅 徒歩19分 |
| 物件構造 | 鉄骨造 | 物件階層 | 4階建 | 物件種別 | マンション |
|---|---|---|---|---|---|
| 完成年月 | 2001年5月 | 駐輪場 | - | バイク置き場 | - |
| 駐車場 | 無 - | ||||
| 物件設備 | オートロックモニター付きオートロックインターネットインターネット無料宅配ボックス防犯カメラ管理人常駐家主常駐エレベーター数:1基エレベーター数:1基 | ||||
| 周辺環境 | - | ||||
似た条件でお探しの場合、担当店舗へお電話いただくか、以下の「希望条件リクエスト」よりメールでリクエスト頂けましたら、条件に合った物件をご紹介させて頂きます。
お電話の際は、サイト名と記事番号をお伝えいただくとスムーズです。
| 物件番号 | BC1-124758 |
|---|---|
| サイト名 | BRUNO不動産『再生。』 |
似た物件を探したい、最新の物件情報を知りたい、希望の物件条件で見つけて欲しい、などお気軽にお問い合わせ下さい。