TOP
大阪市福島区 福島駅 詳細























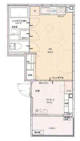
| 所在階数 | 3階 | 方角 | 東向き | 契約期間 | 2年 |
|---|---|---|---|---|---|
| 部屋設備 | デザイナーズリノベーション角部屋設備充実日当たり良好フローリング水まわり新品照明器具バルコニーTVインターホン内装全リフォーム済部分リフォーム済BIG1Roomコンロ設置済ガスコンロコンロ2口風呂トイレ別シャワー追い炊き機能室内洗濯機置場ウォシュレットウォームレットエアコンクローゼット事務所使用可店舗使用可 | ||||
| 備考 | - | ||||
| 所在地 | 大阪市福島区 福島5 googleマップでみる |
|---|---|
| 交通 | JR大阪環状線 「福島」駅 徒歩3分 JR東西線 「新福島」駅 徒歩2分 阪神本線 「福島」駅 徒歩4分 |
| 物件構造 | 鉄骨造 | 物件階層 | 4階建 | 物件種別 | マンション |
|---|---|---|---|---|---|
| 完成年月 | 1980年6月 | 駐輪場 | - | バイク置き場 | - |
| 駐車場 | 無 駐車場無し | ||||
| 物件設備 | オートロックモニター付きオートロックインターネット防犯カメラ都市ガス家主常駐エレベーター数:1基エレベーター数:1基 | ||||
| 周辺環境 | 関西スーパー福島店 約422m、堂島クロスウォーク 約433m、三杉屋福島店 約439m、三杉屋福島店 約423m、サンクス大阪福島西通店 約72m、セブンイレブン大阪福島西通店 約114m、カワイ薬店福島店 約205m | ||||
似た条件でお探しの場合、担当店舗へお電話いただくか、以下の「希望条件リクエスト」よりメールでリクエスト頂けましたら、条件に合った物件をご紹介させて頂きます。
お電話の際は、サイト名と記事番号をお伝えいただくとスムーズです。
| 物件番号 | BC1-123278 |
|---|---|
| サイト名 | BRUNO不動産『再生。』 |
似た物件を探したい、最新の物件情報を知りたい、希望の物件条件で見つけて欲しい、などお気軽にお問い合わせ下さい。