メイン
エレガントライフ西本町 詳細























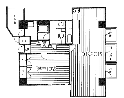
| 所在階数 | 10階 | 方角 | - | 契約期間 | 10年 |
|---|---|---|---|---|---|
| 部屋設備 | エアコンフローリング風呂トイレ別室内洗濯機置場システムキッチンウォシュレットIHコンロコンロ2口バルコニー角部屋日当たり良好眺望が良いTVインターホンシャワーウォームレット二人入居可コンロ設置済 | ||||
| 備考 | - | ||||
| 所在地 | 大阪市西区 西本町1 googleマップでみる |
|---|---|
| 交通 | 大阪メトロ四つ橋線 「本町」駅 徒歩8分 |
| 物件構造 | SRC造 | 物件階層 | 11階建 | 物件種別 | マンション |
|---|---|---|---|---|---|
| 完成年月 | 1983年3月 | 駐輪場 | - | バイク置き場 | - |
| 駐車場 | 駐車場無し | ||||
| 物件設備 | オートロックモニター付きオートロックインターネットエレベーター数:1基防犯カメラ管理人常駐エレベーター数:1基 | ||||
| 周辺環境 | SATURDAYS SURF 心斎橋 約943m、ヴィヴィアンウエストウッド 心斎橋 約960m、大丸 心斎橋店 約1259m、コーヨー 南船場店 約1314m、船場センタービル 約1371m、ライフ 靱店 約526m、ライフ西大橋店 約783m、コーヨー淀屋橋店 約952m | ||||
似た条件でお探しの場合、担当店舗へお電話いただくか、以下の「希望条件リクエスト」よりメールでリクエスト頂けましたら、条件に合った物件をご紹介させて頂きます。
お電話の際は、サイト名と記事番号をお伝えいただくとスムーズです。
| 物件番号 | BC1-115090 |
|---|---|
| サイト名 | BRUNO不動産『再生。』 |
似た物件を探したい、最新の物件情報を知りたい、希望の物件条件で見つけて欲しい、などお気軽にお問い合わせ下さい。