外観
大阪市鶴見区 放出駅 詳細























| 所在階数 | 1階 | 方角 | - | 契約期間 | 1年 |
|---|---|---|---|---|---|
| 部屋設備 | フローリング風呂トイレ別室内洗濯機置場ウォシュレットシャンプードレッサーバルコニー独立洗面脱衣所インターホンシャワークローゼットシューズボックス二人入居可 | ||||
| 備考 | - | ||||
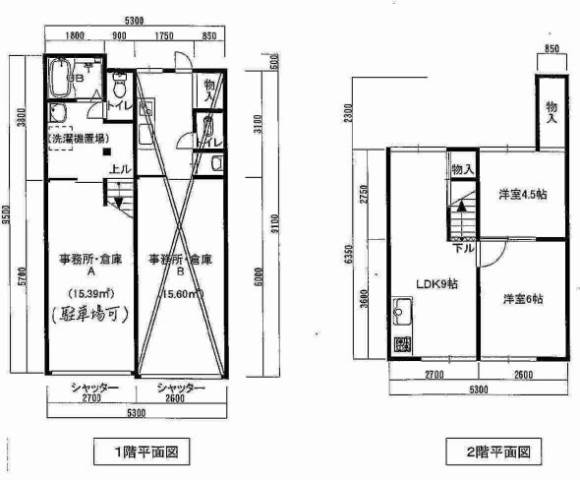
| 所在地 | 大阪市鶴見区 放出東3 googleマップでみる |
|---|---|
| 交通 | JR学研都市線 「放出」駅 徒歩3分 |
| 物件構造 | 木造 | 物件階層 | 2階建 | 物件種別 | 貸家 |
|---|---|---|---|---|---|
| 完成年月 | 1965年1月 | 駐輪場 | - | バイク置き場 | - |
| 駐車場 | - | ||||
| 物件設備 | |||||
| 周辺環境 | ファッションセンターしまむら蒲生店 約2472m、森ノ宮キューズモール 約3266m、イズミヤドン・キホーテ法円坂店 約4230m、京阪シティモール 約4338m、京阪シティーモール 約4382m、阪急オアシス京橋店 約2946m | ||||
似た条件でお探しの場合、担当店舗へお電話いただくか、以下の「希望条件リクエスト」よりメールでリクエスト頂けましたら、条件に合った物件をご紹介させて頂きます。
お電話の際は、サイト名と記事番号をお伝えいただくとスムーズです。
| 物件番号 | BC1-114593 |
|---|---|
| サイト名 | BRUNO不動産『再生。』 |
似た物件を探したい、最新の物件情報を知りたい、希望の物件条件で見つけて欲しい、などお気軽にお問い合わせ下さい。