外観
大阪市西区 本町駅 詳細























| 所在階数 | 10階 | 方角 | - | 契約期間 | 10年 |
|---|---|---|---|---|---|
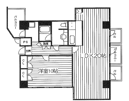
| 部屋設備 | 眺望が良い角部屋日当たり良好フローリングバルコニーTVインターホンコンロ設置済IHコンロシステムキッチンコンロ2口風呂トイレ別シャワー室内洗濯機置場ウォシュレットウォームレットエアコン二人入居可 | ||||
| 備考 | - | ||||
| 所在地 | 大阪市西区 西本町1 googleマップでみる |
|---|---|
| 交通 | 大阪メトロ四つ橋線 「本町」駅 徒歩8分 |
| 物件構造 | SRC造 | 物件階層 | 11階建 | 物件種別 | マンション |
|---|---|---|---|---|---|
| 完成年月 | 1983年3月 | 駐輪場 | - | バイク置き場 | - |
| 駐車場 | 駐車場無し | ||||
| 物件設備 | オートロックモニター付きオートロックインターネットエレベーター数:1基防犯カメラ都市ガスエレベーター数:1基 | ||||
| 周辺環境 | SATURDAYS SURF 心斎橋 約943m、ヴィヴィアンウエストウッド 心斎橋 約960m、大丸 心斎橋店 約1259m、コーヨー 南船場店 約1314m、船場センタービル 約1371m、ライフ 靱店 約526m、ライフ西大橋店 約783m、コーヨー淀屋橋店 約952m | ||||
似た条件でお探しの場合、担当店舗へお電話いただくか、以下の「希望条件リクエスト」よりメールでリクエスト頂けましたら、条件に合った物件をご紹介させて頂きます。
お電話の際は、サイト名と記事番号をお伝えいただくとスムーズです。
| 物件番号 | BC1-113730 |
|---|---|
| サイト名 | BRUNO不動産『再生。』 |
似た物件を探したい、最新の物件情報を知りたい、希望の物件条件で見つけて欲しい、などお気軽にお問い合わせ下さい。