メイン
大阪市中央区 谷町四丁目駅 詳細























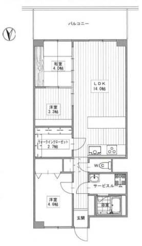
| 所在階数 | 4階 | 方角 | - | 契約期間 | 2年 |
|---|---|---|---|---|---|
| 部屋設備 | エアコンフローリング風呂トイレ別室内洗濯機置場床暖房システムキッチンウォシュレットガスコンロコンロ2口バルコニーウォークインクローゼット日当たり良好南向き納戸付きコンロ3口以上独立洗面脱衣所照明器具インターホンシャワークローゼットシューズボックス食器棚(カップボード)浄水器コンロ設置済 | ||||
| 備考 | - | ||||
| 所在地 | 大阪市中央区 農人橋2 googleマップでみる |
|---|---|
| 交通 | 大阪メトロ中央線 「谷町四丁目」駅 徒歩5分 |
| 物件構造 | SRC造 | 物件階層 | 11階建 | 物件種別 | マンション |
|---|---|---|---|---|---|
| 完成年月 | 1979年11月 | 駐輪場 | - | バイク置き場 | - |
| 駐車場 | 駐車場有り 駐車料:25000円税込み | ||||
| 物件設備 | インターネットBSCSエレベーター数:1基都市ガス管理人常駐エレベーター数:1基 | ||||
| 周辺環境 | デイリーカナートイズミヤ法円坂店 約523m、イズミヤドン・キホーテ法円坂店 約575m、コーヨー内本町店 約312m、セブンイレブン大阪農人橋1丁目店 約116m、スギ薬局谷町四丁目店 約435m、南大江小学校 約96m、大阪谷町四郵便局 約339m、ハローワーク大阪東 約89m | ||||
似た条件でお探しの場合、担当店舗へお電話いただくか、以下の「希望条件リクエスト」よりメールでリクエスト頂けましたら、条件に合った物件をご紹介させて頂きます。
お電話の際は、サイト名と記事番号をお伝えいただくとスムーズです。
| 物件番号 | BC1-112183 |
|---|---|
| サイト名 | BRUNO不動産『再生。』 |
似た物件を探したい、最新の物件情報を知りたい、希望の物件条件で見つけて欲しい、などお気軽にお問い合わせ下さい。