³°´Ñ
¿²²°Àî»Ô ¹áΤ±à±Ø ¾ÜºÙ























| ½êºß³¬¿ô | 1³¬ | Êý³Ñ | - | ·ÀÌó´ü´Ö | 2ǯ |
|---|---|---|---|---|---|
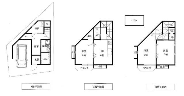
| Éô²°ÀßÈ÷ | ¥Õ¥í¡¼¥ê¥ó¥°É÷Ϥ¥È¥¤¥ìÊ̼¼ÆâÀöÂõµ¡ÃÖ¾ì¥í¥Õ¥È¥·¥¹¥Æ¥à¥¥Ã¥Á¥ó¥·¥ã¥ó¥×¡¼¥É¥ì¥Ã¥µ¡¼IH¥³¥ó¥í¥³¥ó¥í£²¸ý¥Ð¥ë¥³¥Ë¡¼¥¦¥©¡¼¥¯¥¤¥ó¥¯¥í¡¼¥¼¥Ã¥ÈÆüÅö¤¿¤êÎɹ¥Ä¯Ë¾¤¬Îɤ¤½ÐÁ륯¥í¥¼¥Ã¥È£²¤Ä°Ê¾å¾ÈÌÀ´ï¶ñ¥¤¥ó¥¿¡¼¥Û¥ó¿©´ïÀö¾ô´¥Á絡¥·¥ã¥ï¡¼¥¯¥í¡¼¥¼¥Ã¥È¥·¥å¡¼¥º¥Ü¥Ã¥¯¥¹¥Ú¥Ã¥È²Ä(¤Í¤³²Ä)Æó¿ÍÆþµï²Ä»ö̳½ê»ÈÍÑ²Ä | ||||
| È÷¹Í | - | ||||
| ½êºßÃÏ | ¿²²°Àî»Ô ÃÓÅÄËÌÄ® google¥Þ¥Ã¥×¤Ç¤ß¤ë |
|---|---|
| ¸òÄÌ | µþºåËÜÀþ ¡Ö¹áΤ±à¡×±Ø ÅÌÊâ22ʬ |
| ʪ·ï¹½Â¤ | RC¤ | ʪ·ï³¬ÁØ | 3³¬·ú | ʪ·ï¼ïÊÌ | Âß²È |
|---|---|---|---|---|---|
| ´°À®Ç¯·î | 2002ǯ10·î | ÃóÎØ¾ì | - | ¥Ð¥¤¥¯ÃÖ¤¾ì | - |
| Ãó¼Ö¾ì | Ãó¼Ö¾ìͤꡡÃó¼ÖÎÁ¡§0±ßÀǹþ¤ß¡¡Ãó¼ÖÎÁÉß¶â¡§0¥ö·î | ||||
| ʪ·ïÀßÈ÷ | ¥¤¥ó¥¿¡¼¥Í¥Ã¥ÈÅÔ»Ô¥¬¥¹ | ||||
| ¼þÊմĶ | ¥í¡¼¥½¥ó¿²²°ÀîËΤĮŹ Ìó398m¡¢»°¿ù²°¥Û¡¼¥à¥º¿²²°ÀîŹ Ìó633m¡¢¥¢¥ë¡¦¥×¥é¥¶¹áΤ±à Ìó775m¡¢¥æ¥Ë¥¯¥í¥Û¡¼¥à¥º¿²²°ÀîŹ Ìó627m¡¢¥¸¥ç¡¼¥·¥ó¥Û¡¼¥à¥º¿²²°ÀîŹ Ìó626m¡¢¿²²°Àî»ÔΩÌÚ²°¾®³Ø¹» Ìó542m¡¢¤¤ó¤â¤¯¤»¤¤Êݰé±à Ìó730m | ||||
»÷¤¿¾ò·ï¤Ç¤ªÃµ¤·¤Î¾ì¹ç¡¢Ã´ÅöŹÊޤؤªÅÅÏ䤤¿¤À¤¯¤«¡¢°Ê²¼¤Î¡Ö´õ˾¾ò·ï¥ê¥¯¥¨¥¹¥È¡×¤è¤ê¥á¡¼¥ë¤Ç¥ê¥¯¥¨¥¹¥È失¤Þ¤·¤¿¤é¡¢¾ò·ï¤Ë¹ç¤Ã¤¿Êª·ï¤ò¤´¾Ò²ð¤µ¤»¤ÆÄº¤¤Þ¤¹¡£
¤ªÅÅÏäκݤϡ¢¥µ¥¤¥È̾¤Èµ»öÈÖ¹æ¤ò¤ªÅÁ¤¨¤¤¤¿¤À¤¯¤È¥¹¥à¡¼¥º¤Ç¤¹¡£
| ʪ·ïÈÖ¹æ | BC1-110504 |
|---|---|
| ¥µ¥¤¥È̾ | BRUNOÉÔÆ°»º¡ØºÆÀ¸¡£¡Ù |
06-6459-4555
½êºßÃÏ¡§Âçºå»ÔÀ¾¶èµþÄ®ËÙ1-10-21
¥¢¥¯¥»¥¹¡§Ãϲ¼Å´»Í¥Ä¶¶Àþ Èî¸å¶¶±Ø7Èֽиý¤è¤êÆîÀ¾¤ØÅÌÊâ3ʬ
»÷¤¿Êª·ï¤òõ¤·¤¿¤¤¡¢ºÇ¿·¤Îʪ·ï¾ðÊó¤òÃΤꤿ¤¤¡¢´õ˾¤Îʪ·ï¾ò·ï¤Ç¸«¤Ä¤±¤ÆÍߤ·¤¤¡¢¤Ê¤É¤ªµ¤·Ú¤Ë¤ªÌ䤤¹ç¤ï¤»²¼¤µ¤¤¡£