PICK UP
スタッフが厳選した、北摂エリア(箕面市・池田市・豊中市・吹田市・茨木市)のおすすめ物件 記事詳細です。 一覧ページでは書ききれなかった、日当たりの良さや収納の使い勝手、さらには周辺環境まで、新生活をより具体的にイメージしていただけるようにブログ記事でご紹介します。理想の住まい選びに役立つヒントがきっと見つかるはず!

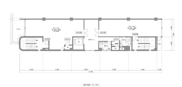
【貸店鋪】
箕面船場阪大前徒歩4分!テナントビル店舗事務

SENBA BASE
2026年春リノベーション工事完了予定!※リノベーション工事前なので設備、内装ご相談下さい。
2026年春リノベーション工事完了予定!※リノベーション工事前なので設備、内装ご相談下さい。

箕面船場阪大前駅 徒歩4分
店舗・事務所・倉庫
学習塾、クリニック、美容サロン、ジム等業種相談下さい!



お問合せお待ちしております♪
| 物件情報 | |
|---|---|
![]() |
|
| 賃料・共益費 | 193,600円 共益費:22,704円 |
| 広さ・平米 | 20.64坪 専有面積:68.24 ㎡ |
| 敷金/礼金 | 19.3万円/19.3万円 |
| 所在地 | 大阪箕面市船場東3丁目 |
| アクセス | 北大阪急行電鉄 箕面船場阪大前駅 徒歩4分 |
| 物件種別・規模 | 貸店鋪 地上7階建 |
| 募集状況 | 要確認 |
| お問い合せ記事番号 | 15166 |
※物件情報は常に流通しているため、お問合せのタイミングによっては募集状況が異なる場合がございます。
