PICK UP
スタッフが厳選した、北摂エリア(箕面市・池田市・豊中市・吹田市・茨木市)のおすすめ物件 記事詳細です。 一覧ページでは書ききれなかった、日当たりの良さや収納の使い勝手、さらには周辺環境まで、新生活をより具体的にイメージしていただけるようにブログ記事でご紹介します。理想の住まい選びに役立つヒントがきっと見つかるはず!

【貸店鋪】
阿蘇の小国杉を使ったモデルハウス店舗・事務所


熊本県阿蘇の小国杉をつかったモデルハウスとして
利用されていた建物です。
木のあたたかさが魅力

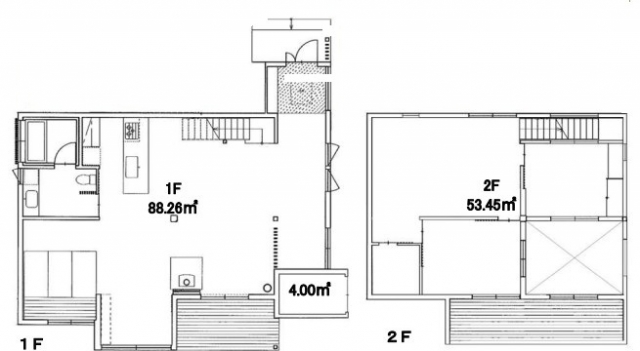
南面には大きく開口部が設けられており
吹抜けによる採光でとても明るい室内となっております。

隣接敷地では、地元民に大人気の岡山県美作市の道の駅
「彩菜みまさか」、箕面で人気の洋菓子屋さん、梅干し屋さんが営業中。
相互作用での集客が見込める立地です♪
お問合せお待ちしております♪
| 物件情報 | |
|---|---|
![]() |
|
| 賃料・共益費 | 401,500円 共益費:0円 |
| 広さ・平米 | 44.08坪 専有面積:145.72 ㎡ |
| 敷金/礼金 | 219万円/ー |
| 所在地 | 大阪箕面市彩都粟生南1丁目 |
| アクセス | 国際文化公園都市モノレール 彩都西駅 徒歩13分 |
| 物件種別・規模 | 貸店鋪 地上2階建 |
| 募集状況 | 要確認 |
| お問い合せ記事番号 | 15154 |
※物件情報は常に流通しているため、お問合せのタイミングによっては募集状況が異なる場合がございます。
