- 所在地
- 大阪市西区京町堀1-10-21

- アクセス
- 地下鉄四ツ橋線 肥後橋駅7番出口より南西へ徒歩3分
物件画像
物件情報は代表的なお部屋を掲載しております。
建物内の別の間取りでも空室がある場合がございます。
ご指名物件の空室待ちなども受付けておりますので、お電話かメールにてスタッフまでお申付下さい。
※写真や図と現況が異なる場合は現況を優先させていただきます。
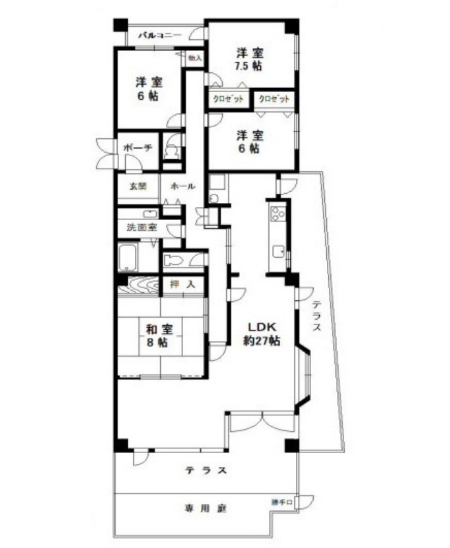
| 賃料 220,000円 | 間取り 4LDK |
|---|---|
| 共益費:20,000円 | 専有面積:125.82㎡ 間取り詳細:LDK 27帖,和室 8畳,洋室 6帖,洋室 6帖,洋室 7.5帖 |
| 所在地 | 箕面市小野原東 googleマップでみる |
|---|---|
| 交通 | 大阪モノレール彩都線「豊川駅」徒歩14分 阪急千里線「北千里駅」徒歩33分 大阪モノレール線「万博記念公園駅」徒歩60分 |
| 特記事項 | 設備充実 安心の住環境 現地待ち合わせOK |
| 成約状況 |
| 近隣情報 | ドラッグストア:ウエルシア箕面小野原東店119m 銀行:大阪信用金庫箕面支店207m コンビニ:ファミリーマート箕面小野原東店208m スーパー:コーヨー小野原店272m 小学校:箕面市立豊川南小学校727m 病院:友紘会総合病院1144m ホームセンター:ニトリ茨木北店1236m ショッピングセンター:dios北千里2110m 大学:国立大阪大学箕面キャンパス3315m |
|---|

分譲賃貸、システムキッチン、追焚機能、出窓、駐輪場あり、温水洗浄便座、浴室乾燥機、洗面所独立、クローゼット、シューズボックス、ペット相談、水道(公営)、ガス(都市)、排水(下水)、バス専用、バス・トイレ別、シャワー、IHコンロ、コンロ(三口)、室内洗濯機置き場、オートロック、エレベータ有、バルコニー、フローリング
−
※電話でお問い合わせの際は、サイト名と物件番号をお伝え下さい。
最新の空室確認、内覧希望、詳しい情報を知りたい、似た物件を探したい、などお気軽にお問い合わせ下さい。