- 所在地
- 大阪市西区京町堀1-10-21

- アクセス
- 地下鉄四ツ橋線 肥後橋駅7番出口より南西へ徒歩3分
物件画像
物件情報は代表的なお部屋を掲載しております。
建物内の別の間取りでも空室がある場合がございます。
ご指名物件の空室待ちなども受付けておりますので、お電話かメールにてスタッフまでお申付下さい。
※写真や図と現況が異なる場合は現況を優先させていただきます。
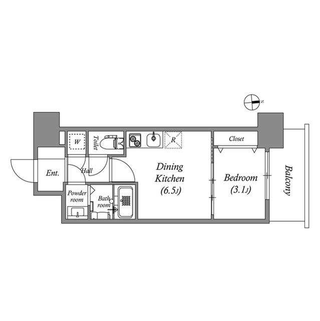
| 賃料 95,000円 | 間取り 1DK |
|---|---|
| 共益費:8,000円 | 専有面積:27.55㎡ 間取り詳細:DK 6.5帖,洋室 3.1帖 |
| 所在地 | 吹田市江坂町 googleマップでみる |
|---|---|
| 交通 | 北大阪急行電鉄「江坂駅」徒歩5分 阪急千里線「豊津駅」徒歩16分 |
| 特記事項 | 江坂駅徒歩5分、築浅1DK。敷金礼金ゼロ。ペット対応、ネット無料。セキュリティも配慮。 |
| 成約状況 |
| 近隣情報 | スーパー:フレスコ江坂店210m ショッピングセンター:東急ハンズ江坂458m ドラッグストア:スギ薬局江坂垂水町店462m コンビニ:セブンイレブン吹田垂水町3丁目店665m 大学:私立大阪音楽大学3028m ホームセンター:コーナンPRO WORK&TOOL本庄西店6709m |
|---|

二人入居可、システムキッチン、給湯、シャワー付洗面化粧台、ウォークインクローゼット、CSアンテナ、BSアンテナ、宅配ボックス、温水洗浄便座、浴室乾燥機、洗面所独立、防犯カメラ、クローゼット、シューズボックス、ペット対応、水道(公営)、排水(下水)、バス専用、バス・トイレ別、シャワー、IHコンロ、コンロ(二口)、エアコン、室内洗濯機置き場、オートロック、エレベータ有、バルコニー、フローリング、TVドアホン、インターネット使用料無料、礼金無し、敷金なし
−
※電話でお問い合わせの際は、サイト名と物件番号をお伝え下さい。
最新の空室確認、内覧希望、詳しい情報を知りたい、似た物件を探したい、などお気軽にお問い合わせ下さい。