- 所在地
- 大阪市西区京町堀1-10-21

- アクセス
- 地下鉄四ツ橋線 肥後橋駅7番出口より南西へ徒歩3分
物件画像
物件情報は代表的なお部屋を掲載しております。
建物内の別の間取りでも空室がある場合がございます。
ご指名物件の空室待ちなども受付けておりますので、お電話かメールにてスタッフまでお申付下さい。
※写真や図と現況が異なる場合は現況を優先させていただきます。
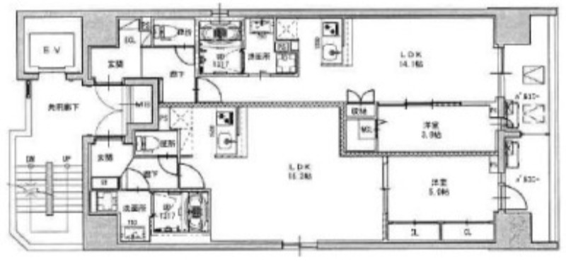
| 賃料 150,000円 | 間取り 1LDK |
|---|---|
| 共益費:10,000円 | 専有面積:46.23㎡ 間取り詳細:− |
| 所在地 | 西区九条 googleマップでみる |
|---|---|
| 交通 | 阪神なんば線「九条駅」徒歩2分 Osaka Metro中央線「九条駅」徒歩3分 阪神なんば線「ドーム前駅」徒歩4分 |
| 特記事項 | 阪神なんば線九条駅徒歩2分。2026年1月築の新しい1LDK。南向き角部屋で明るい毎日を。 |
| 成約状況 |
| 近隣情報 | ホームセンター:meets.九条ナインモール店157m 飲食店:吉野家九条店181m コンビニ:セブンイレブン大阪千代崎2丁目店195m スーパー:Hanamasa Plus千代崎店306m ショッピングセンター:無印良品イオンモール大阪ドームシティ店498m 図書館:大阪市立中央図書館1142m |
|---|

システムキッチン、給湯、駐輪場あり、バイク置き場あり、角部屋、カウンターキッチン、浴室乾燥機、防犯カメラ、シューズボックス、水道(公営)、ガス(都市)、排水(下水)、バス専用、バス・トイレ別、ガスコンロ、コンロ(三口)、エアコン、室内洗濯機置き場、オートロック、エレベータ有、バルコニー、フローリング、礼金無し
−
※電話でお問い合わせの際は、サイト名と物件番号をお伝え下さい。
最新の空室確認、内覧希望、詳しい情報を知りたい、似た物件を探したい、などお気軽にお問い合わせ下さい。