- 所在地
- 大阪市西区京町堀1-10-21

- アクセス
- 地下鉄四ツ橋線 肥後橋駅7番出口より南西へ徒歩3分
物件画像
物件情報は代表的なお部屋を掲載しております。
建物内の別の間取りでも空室がある場合がございます。
ご指名物件の空室待ちなども受付けておりますので、お電話かメールにてスタッフまでお申付下さい。
※写真や図と現況が異なる場合は現況を優先させていただきます。
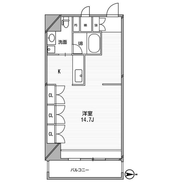
| 賃料 111,000円 | 間取り 1R |
|---|---|
| 共益費:10,000円 | 専有面積:41.47㎡ 間取り詳細:洋室 14.7帖 |
| 所在地 | 西区南堀江 googleマップでみる |
|---|---|
| 交通 | 阪神なんば線「桜川駅」徒歩5分 大阪市営地下鉄千日前線「西長堀駅」徒歩3分 大阪市営地下鉄長堀鶴見緑地線「西長堀駅」徒歩6分 |
| 特記事項 | 堀江エリアの人気デザイナーズマンションネット無料ペット飼育可能で愛犬とも一緒に暮らせます |
| 成約状況 |
| 近隣情報 | スーパー:関西スーパー南堀江店130m コンビニ:ローソン南堀江4丁目店150m ドラッグストア:スギドラック北堀江店270m 図書館:辰己商会中央図書館350m 役所:大阪市西区役所700m |
|---|

システムキッチン、給湯、追焚機能、CSアンテナ、宅配ボックス、駐輪場あり、バイク置き場あり、温水洗浄便座、デザイナーズ、浴室乾燥機、防犯カメラ、全居室収納、クローゼット、シューズボックス、照明器具付き、ペット対応、水道(公営)、ガス(都市)、排水(下水)、バス専用、バス・トイレ別、シャワー、ガスコンロ、コンロ(二口)、エアコン、室内洗濯機置き場、オートロック、バルコニー、フローリング、インターネット対応(光ファイバー)、TVドアホン、インターネット使用料無料、礼金無し、敷金なし
−
※電話でお問い合わせの際は、サイト名と物件番号をお伝え下さい。
最新の空室確認、内覧希望、詳しい情報を知りたい、似た物件を探したい、などお気軽にお問い合わせ下さい。